EasyManua.ls Logo

BMW Z3(E36/7) - Tire Pressure Warning System (RDW)

BMW Z3(E36/7)
367 pages
Print Icon
To Next Page IconTo Next Page
To Next Page IconTo Next Page
To Previous Page IconTo Previous Page
To Previous Page IconTo Previous Page
Loading...
.5 GE
.5 BR
X6021
S555
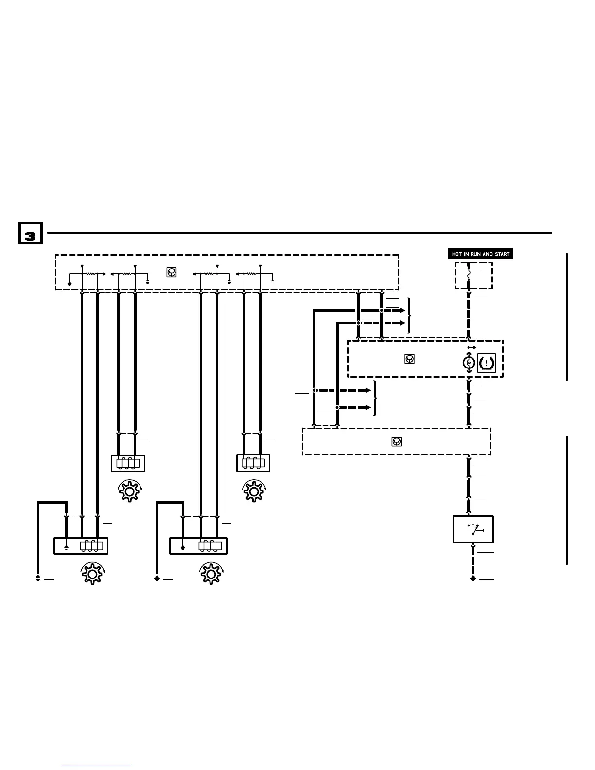
TIRE PRESSURE WARNING
SYSTEM (RDW) PUSHBUTTON
1) OFF
2) TEACHIN PROCESS
BM
BMW
BMWBMW
Z3
3623.1 TIRE PRESSURE WARNING SYSTEM (RDW)
01/01
3623.1Ć
2001
00
2
3 34 33 30 31
5 6
12X114
2 1 X142
21X113
2 1 X143
B2
LEFT FRONT
SPEED SENSOR
ABS
B4
LEFT REAR SPEED
SENSOR ABS
B1
RIGHT FRONT
SPEED SENSOR
ABS
B3
RIGHT REAR SPEED
SENSOR ABS
LEFT FRONT
PULSE WHEEL
A65
DYNAMIC STABIL-
ITY CONTROL UNIT
(DSC)
LEFT REAR PULSE
WHEEL
RIGHT FRONT
PULSE WHEEL
RIGHT REAR
PULSE WHEEL
.5 BR .5
BR/
RT
.5 BL .5
BR
.5 GE .5
BR
.5 GE/SW .5
GE/
BR
3 3
X170 X170
31
31
31
31
31
31
P90
FRONT POWER
DISTRIBUTION BOX
23
X17
A2w
INSTRUMENT
CLUSTER
X6021
A6000
ENGINE CONTROL
MODULE (DME)
1
.5 SW/ RT/GE
5
X60535
21
1
X100000
X6000345
.5 SW/GN/GE
F27
5A
X16
X1001714
FUSE DETAILS
0670.3
X6053
.5 SW/GN
8
.5 GE/SW
X60003
19
7
X100000
2
X18170
GROUND DISTRIBUTION
0670.4
17 X1746
.5 BR
16
6
7
.5 GE
X1893
X1894
.5 BR
ENGINE CONTROL
SYSTEM MSS54
(6CYLINDER S54 B32)
1210.27
.5 BR
37
36
.5 GE
X18835
X18836
ENGINE CONTROL
SYSTEM MSS54 (6CYL-
INDER S54 B32)
1210.27
.5 GE
CAN+ CAN
CAN+CAN
X60004
CAN+CAN
.5 GE/SW
.5 GE/SW

Table of Contents

Other manuals for BMW Z3(E36/7)

Related product manuals