EasyManua.ls Logo

BMW Z3(E36/7) - Engine Control System MS43 (6-Cylinder M54); Z3 Versions

BMW Z3(E36/7)
367 pages
Print Icon
To Next Page IconTo Next Page
To Next Page IconTo Next Page
To Previous Page IconTo Previous Page
To Previous Page IconTo Previous Page
Loading...
23
33
01/01
1210.26
2001
B62400
DOUBLE KNOCK
SENSOR
1210.26-08
31 3229 30 48
Y6101
CYL. 1 FUEL
INJECTION
VALV E
Y6102
CYL. 2 FUEL
INJECTION
VALV E
Y6103
CYL. 3 FUEL
INJECTION
VALV E
1210.26-02
35
+
Y6104
CYL. 4 FUEL
INJECTION VALVE
Y6105
CYL. 5 FUEL
INJECTION VALVE
Y6106
CYL. 6 FUEL
INJECTION VALVE
1210.26-02
36
1210.26-03
41
38 40
37
42
+
46 47
Y6130
IDLE SPEED
CONTROL
VALV E
1210.26-03
34
33
52
1210.26-02
32
D
+
F205
30A
1
7
23
A
B
F18
15A
M2
FUEL PUMP
K6301w
FUEL PUMP RELAY
1210.26-06
1210.26-06
1210.26-04
F13
5A
M119
LEAKAGE
DIAGNOSIS
PUMP
30
1210.26-04
310
17 45
20
S30
BRAKE LIGHT
SWITCH
1210.26-04
28 24 19
181 29
43 44 1910
Y6390
ELECTRIC
THROTTLE
ACTUATOR
22
23
1210.26-07
24 25
1210.26-07
27 28
1210.26-07
22 36
1210.26-09
37
1210.26-08
1210.26-09
17
27 35
6
1210.26-08
45 6
5
A6000
ENGINE CONTRO
MODULE (DME)
1210.26-09
4 3 6
P98
FUSE HOLDER IN
EBOX
1210.26-00
K6327
INJECTION VALVES
RELAY
A7000
TRANSMISSION
CONTROL MODULE
(EGS)
G6400
B+ JUNCTION
POINT EBOX
K6300
ENGINE CONTROL
MODULE RELAY
1210.26-05
B6207
HOT FILM AIR
MASS METER
B6203
CRANKSHAFT
POSITION/RPM
SENSOR
B6214
CAMSHAFT
POSITION SENSOR
1 (INLET)
B6224
CAMSHAFT
POSITION SENSOR
2 (OUTLET)
B6279
THERMOSTAT,
CHARACTERISTIC
MAP COOLING
1210.26-05
1210.26-05
P98
FUSE HOLDER IN
EBOX
G7512
B+ JUNCTION
POINT
K19
COMPRESSOR
CONTROL
RELAY
1210.26-08
K6304
SECONDARY AIR
PUMP RELAY
Y6133
AIR PUMP
1210.26-07
B6205
INTAKE AIR
TEMPERATURE
SENSOR
B6236
ENGINE COOLANT
TEMPERATURE
SENSOR
B6238
OIL TEMPERATURE
SENSOR
A52
SLIP CONTROL MODULE
(ABS/ASC)
A65
DYNAMIC STABILITY
CONTROL UNIT (DSC)
S32
CLUTCH SWITCH
A19007
THERMAL OIL
LEVEL SENSOR
(TOENS) CONTROL
MODULE
A837
ELECTRONIC
IMMOBILIZER
CONTROL MODULE
(EWS III)
A7000
TRANSMISSION
CONTROL MODULE
(EGS)
A9008
CRUISE CONTROL
INTERFACE
A
49
5
2
8
18
15
21
C
7
13
1
16
15
14
24
22
21
20
TXD
7
20
C
D B E A
A = 60001
B = 60002
C = 60003
D = 60004
E = 60005
B62101
OXYGEN SENSOR I
(IN FRONT OF
CATALYTIC
CONVERTER)
B62201
OXYGEN SENSOR
II (IN FRONT OF
CATALYTIC
CONVERTER)
B62102
OXYGEN SENSOR I
(BEHIND
CATALYTIC
CONVERTER)
B62202
OXYGEN SENSOR
II (BEHIND
CATALYTIC
CONVERTER)
F108
80A
F107
50A
F201
30A
F203
20A
F204
30A
P90
FRONT POWER
DISTRIBUTION
BOX
1210.26-04
Y6167
VALVE, INDIVIDUAL
CONTROL INTAKE
SYSTEM
Y6163
SECONDARY AIR
PUMP VALVE
Y6120
EVAPORATIVE
EMISSION VALVE
Y6276
VARIABLE CAMSHAFT
CONTROL VALVE 2
(OUTLET)
Y6275z
VARIABLE CAMSHAFT
CONTROL VALVE 1
(INLET)
1210.26-09
1210.26-02
1210.26-00
1210.26-00
D100
DATA LINK
CONNECTOR
T6151
CYL. 1 IGNITION
COIL
T6154
CYL. 4 IGNITION
COIL
T6152
CYL. 2 IGNITION
COIL
T6153
CYL. 3 IGNITION
COIL
T6155
CYL. 5 IGNITION
COIL
T6156
CYL. 6 IGNITION
COIL
1210.26-01
1210.26-01
71
8
9
E
2
3
C
8A
F202
30A
D
F26
10A
26
D
F46
15A
C
7 8 1412
R10
PEDAL POSITION
SENSOR
1210.26-09
13
9
D
1210.26-06
B
30 15 R 15
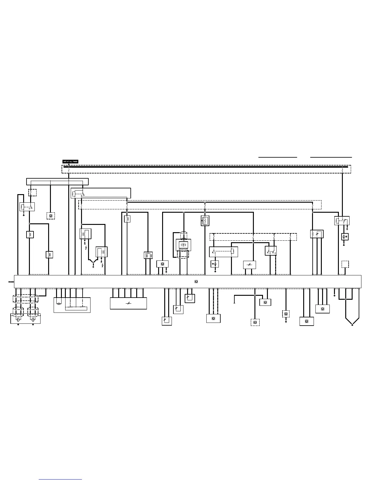
Z3 VERSIONS
1210.26 ENGINE CONTROL SYSTEM MS43 (6CYLINDER M54)

Table of Contents

Other manuals for BMW Z3(E36/7)

Related product manuals