EasyManua.ls Logo

BMW Z3 E37 1998 - Page 200

BMW Z3 E37 1998
347 pages
Print Icon
To Next Page IconTo Next Page
To Next Page IconTo Next Page
To Previous Page IconTo Previous Page
To Previous Page IconTo Previous Page
Loading...
paragon.myvnc.com
.5 BR/RT M ROADSTER
.5 BR/RT
BM
BMW
BMWBMW
Z3
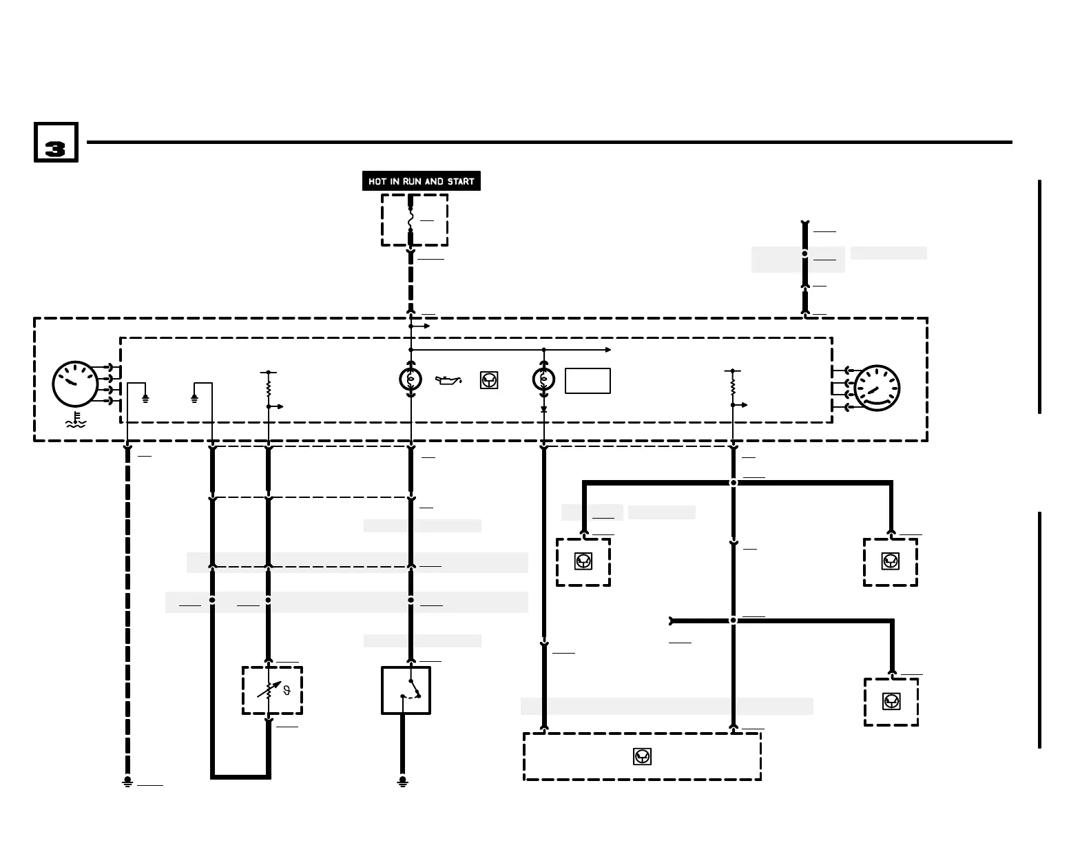
FUSE DETAILS
0670.3
P90
FRONT POWER
DISTRIBUTION BOX
X1623
X1001714
04/99
6211.0Ć
1998
02
INDICATORS
INSTRUMENT CLUSTER
A2w
INSTRUMENT
CLUSTER
3) ENGINE SPEED
INPUT
7) TACHOMETER
X62321
B6232
ENGINE COOLANT
TEMPERATURE
SENSOR
18 X1620
.5 SW
GROUND
DISTRIBUTION
0670.4
.5 BR/VI
3
TACHOMETER
31
11 12
17
.5 BR/GE
24
X16
31
TEMPERATURE
GAUGE
X1047
A6000
ENGINE CONTROL
MODULE (DME)
X6000
.5 SW
B6231
OIL PRESSURE
SWITCH
1) PRESSURE
BETWEEN
0.20.5 BAR
2) NORMAL
PRESSURE
X1719
2 X6232
23
X20
.5 SW
20 X20
.5 BR/GN
.5 BR/GE
X6231
1
X8015
.5 SW
X17
A836
ELECTRONIC
IMMOBILIZER
CONTROL MODULE
(EWS II)
12 X1659
TD
.35 SW
TD
.5 BR/GN
A8500
TRANSMISSION
CONTROL MODULE
(EGS)
40 X8500
TD
.5 SW
X6091
23
.5 BR/GN.5 BR/VI.5 BR/GE
18 17
.5 BR/VI
7
X6002
15
.5 WS/GN
X2019
.5 WS/GN
D100
DATA LINK
CONNECTOR
80
F27
5A
R
CHECK
ENGINE
15
16
1
X6031
8
D100
DATA LINK
CONNECTOR
.5 SW
.5 GR
.5 GR
21
1
X6002
7
X8051X8071 X8010 6CYLINDER
4CYLINDER
3620 6CYLINDER
A52
SLIP CONTROL
MODULE
(ABS/ASC)
41 X1171
.5 SW
6CYLINDER
4CYLINDER
.5 WS/GN
X8072
6CYLINDER
X10010
M ROADSTER
20 X1175
M ROADSTER

Related product manuals