EasyManua.ls Logo

BMW Z3 E37 1998 - Integrated Heating- and

BMW Z3 E37 1998
347 pages
Print Icon
To Next Page IconTo Next Page
To Next Page IconTo Next Page
To Previous Page IconTo Previous Page
To Previous Page IconTo Previous Page
Loading...
paragon.myvnc.com
BM
BMW
BMWBMW
Z3
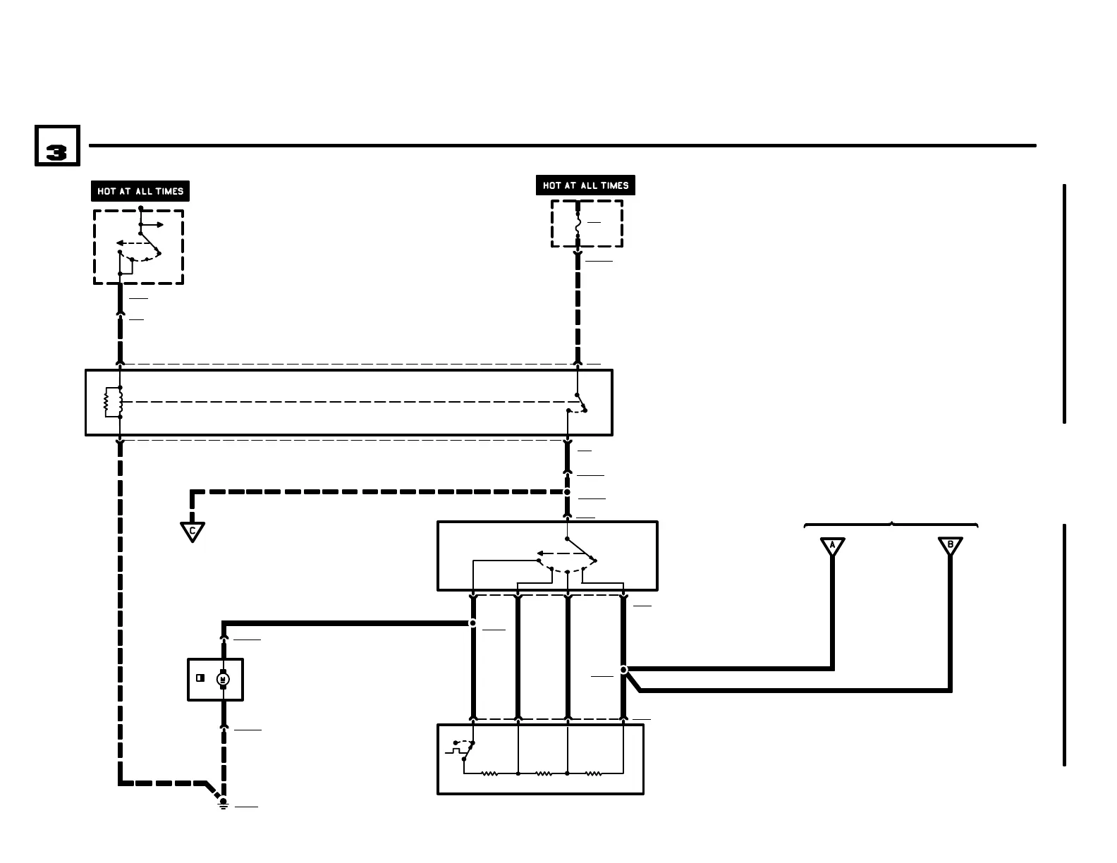
POWER, AIR FLOW CONTROL
04/99
6450.6Ć
1998
INTEGRATED HEATING AND CLIMATE CONTROL
X1001620
8
2.5 GN
P90
FRONT POWER
DISTRIBUTION BOX
F20
30A
X1429
X582
4
3 2 1 7 X905
X132871
6 X58
2 X13233
3 2 1 4 X904
X100547
7 X33
4 X905
S2
IGNITION SWITCH
0) OFF
1) ACCESSORY
2) RUN
3) START
1 X209
86
85
30
87
FUSE DETAILS
0670.3
K4
BLOWER RELAY
2.5 GN/BR
2.5 GN/BR
2.5 BL
2.5 BL
2.5 BL 2.5 GN 1.5 SW
1.5 GE
M30
BLOWER MOTOR
GROUND
DISTRIBUTION
0670.4
GROUND
DISTRIBUTION
0670.4
R11
BLOWER
RESISTORS
1) OPENS IF
RESISTORS
OVERHEAT
1
00
S75
BLOWER SWITCH
0) OFF
1) SLOW
2) MEDIUM
3) FAST
4) MAXIMUM
POWER
DISTRIBUTION
0670.2
X1435
1.5 GE
6450.6-01
X68309
2.5 GN/BR
6450.6-01
(PARTIAL)
X9633
1.5 GE 1.5 GE
2
1
0
3
4
2
1
0
3
Z3 ROADSTER

Related product manuals