EasyManua.ls Logo

BMW Z3 E37 1998 - 1230.0 Charging System

BMW Z3 E37 1998
347 pages
Print Icon
To Next Page IconTo Next Page
To Next Page IconTo Next Page
To Previous Page IconTo Previous Page
To Previous Page IconTo Previous Page
Loading...
paragon.myvnc.com
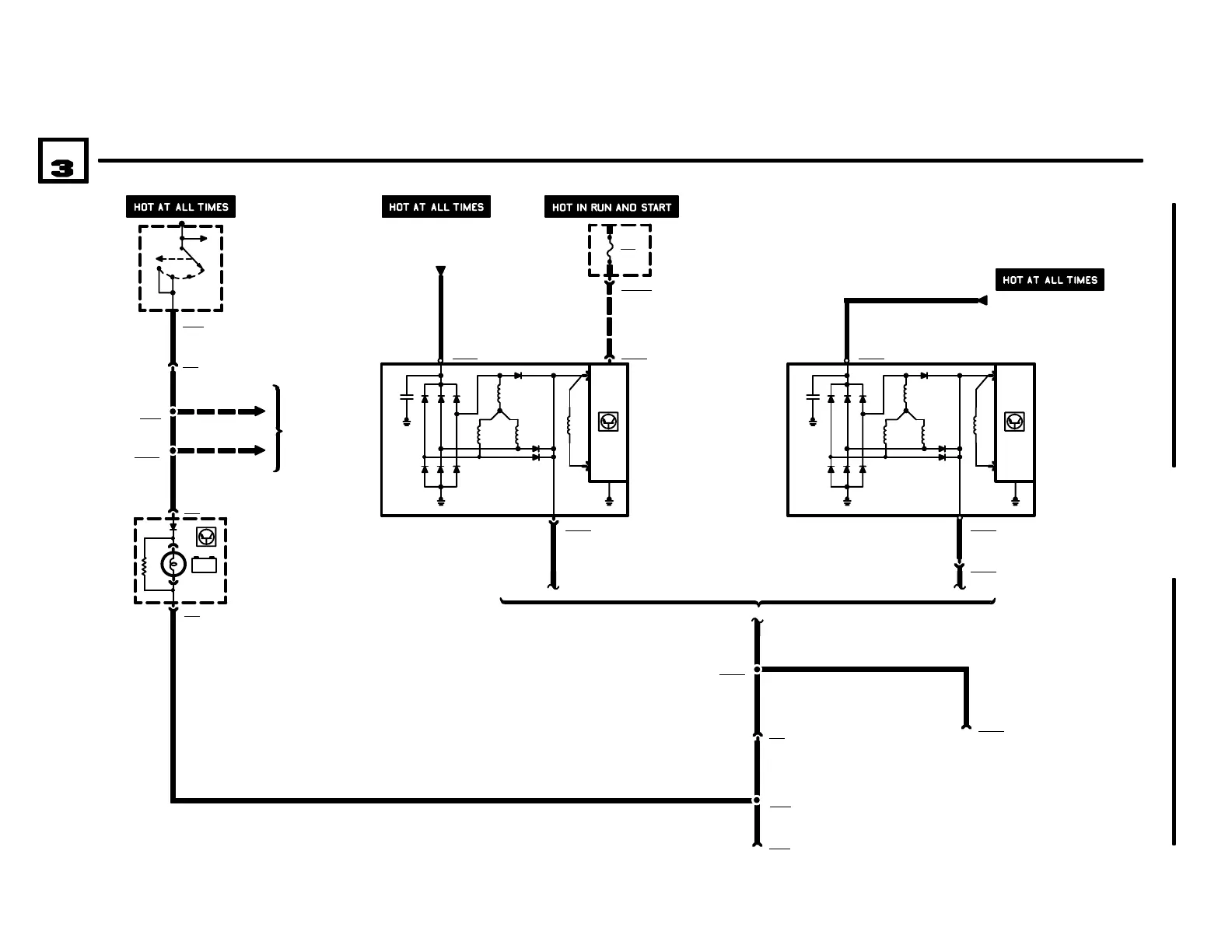
1230.0 CHARGING SYSTEM
04/99
1230.0Ć
1998
00
1.5 BL
G6509
GENERATOR
B+
D+
A2w
INSTRUMENT
CLUSTER
X17
5
X176
S2
IGNITION SWITCH
0) OFF
1) ACCESSORY
2) RUN
3) START
X2091
7 X33
POWER
DISTRIBUTION
0670.2
X203
2.5 GN
2.5 GN
.5 GN
.5 BL
X6002
12
D100
DATA LINK
CONNECTOR
.5 BL
X20
25
.5 BL
X400
3
POWER
DISTRIBUTION
0670.2
X7509
X6509
.75 BL
10 RT
X213
X8004
.5 BL
BM
BMW
BMWBMW
Z3
X1100
1.5 GN
X60919
1.5 BL
TELEPHONE
CONNECTOR
2
1
0
3
31
31 31
G6509
GENERATOR
B+
D+
POWER
DISTRIBUTION
0670.2
X6509
16 RT
31
31 31
F26
10A
6CYLINDER 4CYLINDER
X1001712
FUSE DETAILS
0670.3
P90
FRONT POWER
DISTRIBUTION BOX
X6524
2
X65241
-+
Z3 ROADSTER

Related product manuals