EasyManua.ls Logo

Bunn IMIX - Page 52

Bunn IMIX
52 pages
Print Icon
To Previous Page IconTo Previous Page
To Previous Page IconTo Previous Page
Loading...
52
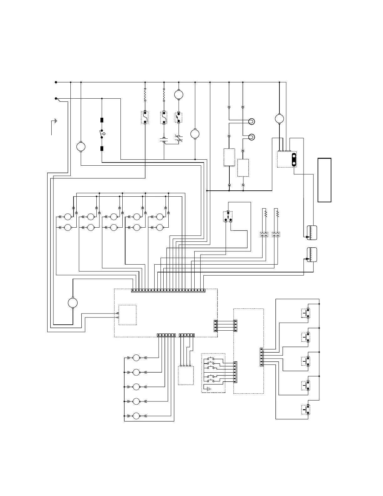
42032 060109
120 VOLTS AC - 2 WIRE
SINGLE PHASE, 60HZ
SCHEMATIC WIRING DIAGRAM
IMIX5S+ - HOT & ICED
GRN
BLK-16
BLK-16
LIMIT
THERMOSTAT
C
O
N
T
R
O
L
C
I
R
C
U
I
T
B
O
A
R
D
J4-5
J4-1
J4-10
J4-15
J4-20
J4-24
J5-5
J5-1
J2-6
J2-1
J3-4
J5-4
J3-1
J5-1
BALLAST
#1
BLK
GRN/BLK GRN/WHI
BLK
120V : 24V AC
TRANSFORMER
BRN/WHI
WHI/RED
WHI/ORN
WHI/YEL
WHI/BLU
GRN
WHI
BLK
YEL
YEL
RUN
PROGRAM
RINSE
HOT WARM
WARM
HOT
WHI/YEL
WHI/VIO
RED
ORN
BLU
WHI
GRN
GRNGRN
J3-6J3-1
DISPLAY BOARD
#1 DISPENSE
SWITCH
TAN
RED
ORN
YEL
BLK
GRN
J6-1
J6-7
TOUCHPAD
DISPENSE
V A LV E #1
M
WHIPPER
#1
BRN/BLK
BRN/BLK
RED
RED
ORN
VIO
ORN
YEL
YEL
BLU
BLK
GRN
WHI
WHI/BLK
HOT
TANK HEATER
BLU/BLK-16
BLU/BLK-16
BLK-16
WHI/YEL
GRY
RED
RED/BLK
BLK
WHI
GRY
GRY
RED
BLK
WHI WHI
WHI
WHI
WHI
WHI
VIO
WHI
WHI
WHI
WHI
WHI
WHI
WHI
WHI
WHI
WHI
WHI
WHI
WHI
WHI
WHI
WHI
WHI
WHIVIO
WHI
GRN
WHI/VIO
PNK
PNKPNK
SOL
DISPENSE
V A LV E #2
M
WHIPPER
#2
SOL
DISPENSE
V A LV E #3
M
WHIPPER
#3
SOL
DISPENSE
V A LV E #4
M
WHIPPER
#4
SOL
DISPENSE
V A LV E #5
M
WHIPPER
#5
SOL
PROBE PROBE
1
t
RED/BLK
WHI/BLK
1
t
WHI
BLK
#2 DISPENSE
SWITCH
#3 DISPENSE
SWITCH
#4 DISPENSE
SWITCH
#5 DISPENSE
SWITCH
M
AUGER
#1
M
AUGER
#2
M
AUGER
#3
M
AUGER
#4
M
AUGER
#5
LAMP
#1
BALLAST
#2
BLK
BLK
BLK
RED/BLK RED/WHI
BLK
LAMP
#2
REDRED RED
OVERFLOW
PROTECTION SW
BLK
BLK
BLK
FAN
SOL
REFILL VAL V E
HOT
M
L1 N
K2
WARM
HEATER RELAY
68
87
K2
BLK
M
BLU-16
BLU-16
LIMIT
THERMOSTAT
WARM
TANK HEATER
WHI
COOLING
FAN
FAN
SWITCH
BRN/BLKBRN/BLK
PNK-20
1
2
3
4
LIQUID
LEVEL
BOARD
SOL
REFILL VAL V E
WARM
N.O.
COM

Related product manuals