EasyManua.ls Logo

Burkert SE56 - Page 100

Burkert SE56
125 pages
Print Icon
To Next Page IconTo Next Page
To Next Page IconTo Next Page
To Previous Page IconTo Previous Page
To Previous Page IconTo Previous Page
Loading...
SE 56
16
16 (out1)
18 (out2)
17 (out1)
19 (out2)
43V
30
29
43V
24V COMMON
+24V INTERNAL
4-20mA OUT
mA
9 (+)
10 (-)
I
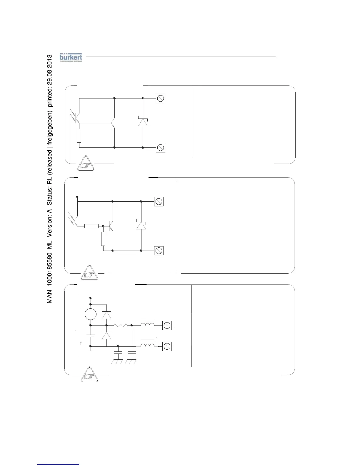
CÂBLAGE DES SORTIES
REMARQUE : Pour le câblage des entrées et sorties, l’utilisation de câbles blindés est recommandée.
Sortie on/off 1250Hz
Sortie opto-isolée avec bornes flottantes de
collecteur et émetteur pouvant être connectées
librement
Tension de commutation maximale : 40 V DC
Courant d’interruption maximal : 100 mA
Tension de saturation maximale entre le
collecteur et l’émetteur à 100mA : 1.2 V
Fréquence de commutation maximale (charge
sur le collecteur ou l’émetteur RL=470 :,
VOUT=24V DC) : 1250 Hz
Courant inverse maximal que l’entrée peut
supporter en cas d’inversion de polarité
accidentelle 100 mA
Isolation par rapport aux autres circuits
secondaires : 500 V DC
Sortie opto-isolée
Charge maximale 1000 Ω
Tension maximale sans charge 27 V DC
Fréquence de rafraichissement égale au taux
d’échantillonnage du capteur connecté
Protégée contre les surtensions persistantes
jusqu’à 30 V DC
Sortie opto-isolée avec bornes flottantes de collecteur et émetteur
pouvant être connectées librement. Pour obtenir les vitesses les
plus performantes, il est nécessaire de connecter l’émetteur à la
borne commune des sorties (0 V), tandis que la charge doit être
placée sur le collecteur. Cette sortie est reliée en interne à la source
d’alimentation électrique de 24 V DC disponible sur le bloc de
branchement.
Tension de commutation maximale : 40 V DC
Courant d’interruption maximal : 100 mA
Tension de saturation maximale entre le collecteur et l’émetteur
100 mA, charge sur le collecteur et source d’énergie interne : 0,3 V
Tension de saturation maximale entre le collecteur et l’émetteur
100 mA, charge sur l’émetteur et source d’énergie interne : 3 V
Fréquence de commutation maximale, charge sur le collecteur et
source d’énergie interne : (RL=470 :, VOUT=24 V) : 12500 Hz
Fréquence de commutation maximale, charge sur l’émetteur ou
source d’énergie externe : (RL=470 :, VOUT=24 V DC) : 2500 Hz
Isolation par rapport aux autres circuits secondaires (à l’exception
des sorties 24 V et 4-20 mA) : 500 V DC
OUTPUT 1/2 standard - OUTPUT 3/4 avec modules
Uniquement avec un module
de sortie haute fquence
Sortie on/off 12500 Hz
Le transmetteur détecte une perte de charge sur la sortie 4-20 mA output ;
pour désactiver cette fonction, régler la valeur "mA Val. Fault" sur 0 (Pos. 4.6)
Sortie 4-20mA

Table of Contents

Other manuals for Burkert SE56

Related product manuals