EasyManua.ls Logo

Burkert SE56 - Output Wirings and Specifications

Burkert SE56
125 pages
Print Icon
To Next Page IconTo Next Page
To Next Page IconTo Next Page
To Previous Page IconTo Previous Page
To Previous Page IconTo Previous Page
Loading...
SE 56
17
16 (out1)
18 (out2)
17 (out1)
19 (out2)
43V
30
29
43V
24V COMMON
+24V INTERNAL
4-20mA OUT
mA
9 (+)
10 (-)
I
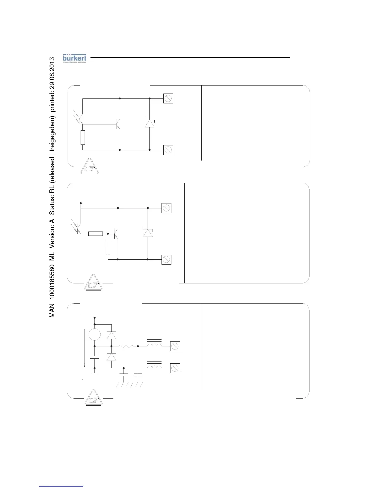
OUTPUT WIRINGS
NOTE: shielded cables are recommended for inputs and outputs wiring.
Output on/off 1250Hz
Opto-insulated output with collector and emitter
terminals floating and freely connectable
Maximum switching voltage: 40V DC
Maximum switching current: 100mA
Maximum saturation voltage between collector
and emitter at 100mA: 1.2V
Maximum switching frequency (load on the
collector or emitter, RL=470:, VOUT=24V DC):
1250Hz
Maximum reverse current bearable on the input
during and accidental polarity reversion (VEC):
100mA
Insulation from other secondary circuits: 500V DC
Opto-insulated output
Maximum load 1000
Maximum voltage without load 27V DC
Refresh frequency equal to the sample frequency
of the connected sensor
Protected against persistent over voltages up to
30V DC
Opto-insulated output with collector and emitter terminals
floating and freely connectable. In order to get the maximum
speed performances it is necessary to connect the emitter to
the common terminal of the outputs (0V), while the load has
to be on the collector. This output is internally connected to
the power supply source 24V DC available on the terminal
block.
Maximum switching voltage: 40V DC
Maximum switching current: 100mA
Maximum saturation voltage between collector and emitter
100mA, load on the collector and internal power supply: 0.3V
Maximum saturation voltage between collector and emitter
100mA, load on the emitter and internal power supply: 3V
Maximum switching frequency, load on the collector and
internal power supply: (RL=470:, VOUT=24V DC): 12500Hz
Maximum switching frequency, load on the emitter or external
power supply: (RL=470:, VOUT=24V DC): 2500Hz
Insulation from the other secondary circuits (except 24V and
4-20mA outputs): 500V DC
OUTPUT 1/2 standard - OUTPUT 3/4 with modules
Only with ME 201 module
Out
p
ut on/off 12500 Hz
The transmitter detects a loss of load on the 4 to 20mA output; to disable this
function set the value "mA val. fault" to 0 (Pos. 4.6)
4-20mA output

Table of Contents

Other manuals for Burkert SE56

Related product manuals