EasyManua.ls Logo

Burkert SE56 - Ausgangsverdrahtung

Burkert SE56
125 pages
Print Icon
To Next Page IconTo Next Page
To Next Page IconTo Next Page
To Previous Page IconTo Previous Page
To Previous Page IconTo Previous Page
Loading...
SE 56
16
16 (out1)
18 (out2)
17 (out1)
19 (out2)
43V
30
29
43V
24V COMMON
+24V INTERNAL
4-20mA OUT
mA
9 (+)
10 (-)
I
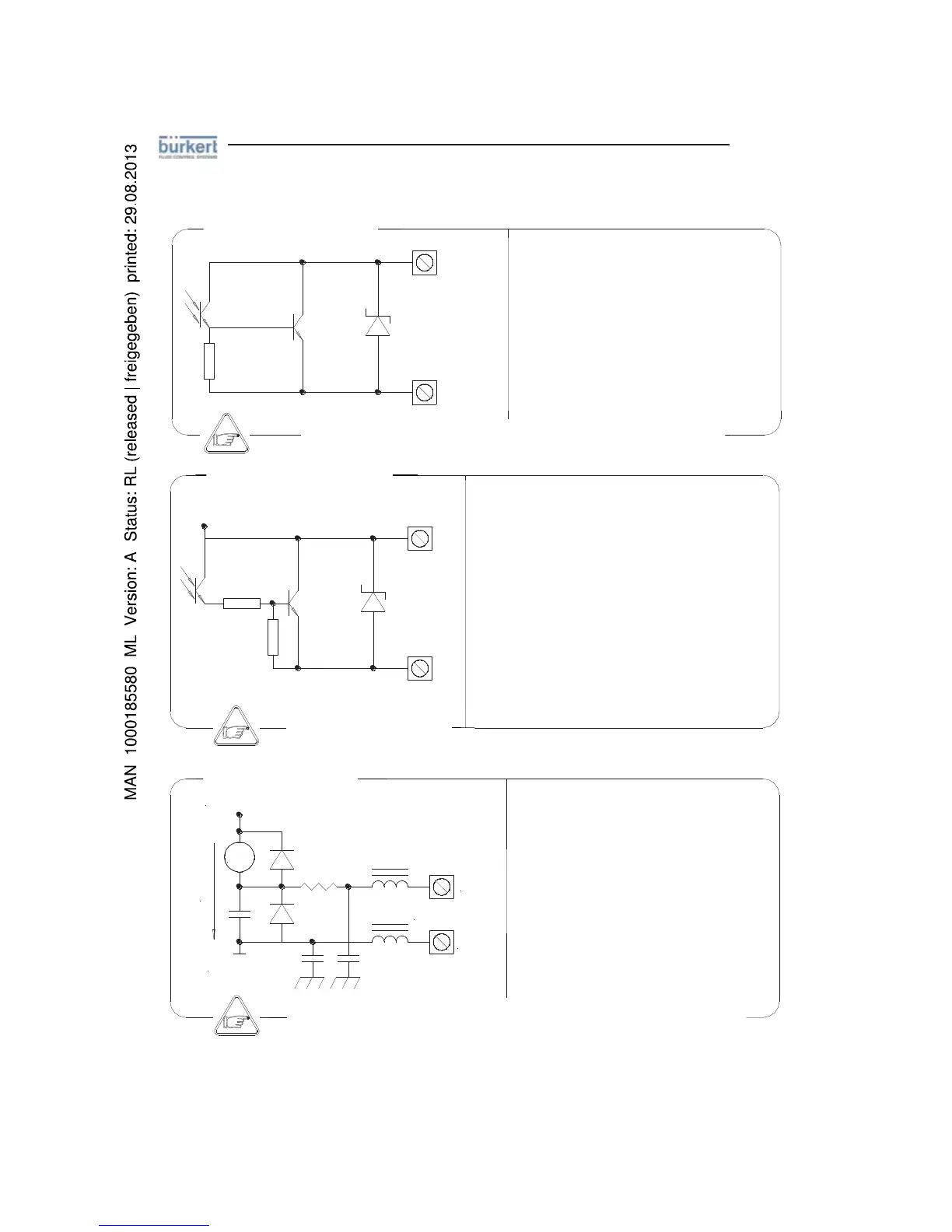
AUSGANGSVERDRAHTUNG
HINWEIS: Für die Verkabelung von Eingängen und Ausgängen werden abgeschirmte Kabel empfohlen
.
Digital-Ausgang 1250 Hz
2SWLVFKLVROLHUWHU$XVJDQJPLW.ROOHNWRUXQG(PLWWHU
DQVFKOXVVSRWHQ]LDOIUHLXQGIUHLEHOHJEDU
0D[LPDOH6FKDOWVSDQQXQJ9'&
0D[LPDOHU6FKDOWVWURPP$
0D[LPDOH6lWWLJXQJVVSDQQXQJ]ZLVFKHQ.ROOHNWRUXQG
(PLWWHUP$EHL9'&
0D[LPDOHV6FKDOWIUHTXHQ]/DVWDQ.ROOHNWRURGHU
(PLWWHU5/ :9287 9'&+]
0D[LPDOP|JOLFKHU8PNHKUVWURPDP(LQJDQJEHL
XQJHZROOWHU3ROXQJVXPNHKU9(&P$
,VROLHUXQJJHJHQEHUDQGHUHQ6HNXQGlUVFKDOWXQJHQ
9'&
Optisch isolierter Ausgang
Maximale Last 1000 Ohm
Maximale Spannung ohne Last 27 V DC
Aktualisierungsfrequenz gleich der Abtastfrequenz
des angeschlossenen Sensors
Geschützt gegen persistente Überspannung bis
30 V DC
Optisch isolierter Ausgang mit Kollektor- und Emitteran-
schluss potenzialfrei und frei belegbar. Um die maximale Ge-
schwindigkeit zu erzielen muss der Emitter an den Nulleiter
der Ausgänge (0 V) angeschlossen werden, während die Last
am Kollektor anliegt. Dieser Ausgang ist intern an die 24 V=-
Stromversorgung angeschlossen, die an der Klemmenleiste
zur Verfügung steht.
Maximale Schaltspannung: 40 V
Maximaler Schaltstrom: 100mA
Maximale Sättigungsspannung zwischen Kollektor und Emitter
100 mA, Last am Kollektor und interne Stromversorgung:
0,3 V
Maximale Sättigungsspannung zwischen Kollektor und Emitter
100 mA, Last am Emitter und interne Stromversorgung: 3 V DC
Maximale Schaltfrequenz, Last am Kollektor und interne
Stromversorgung: (RL=470:, VOUT=24 V DC): 12.500Hz
Maximale Schaltfrequenz, Last am Emitter oder externe
Stromversorgung:(RL = 470 :, VOUT = 24 V DC): 2500 Hz
Isolierung gegenüber den anderen Sekundärschaltungen
(außer 24 V DC und 4…20 mA-Ausgängen): 500 V DC
AUSGANG 1/2 Standard - AUSGANG 3/4 mit Modulen
Nur mit Hochfrequenz-
Ausgangsmodul
Digital-Ausgang 12500 Hz
Der Transmitter erkennt einen Lastabfall am 4 ÷ 20 mA-Ausgang. Um diese Funk-
tion zu deaktivieren, stellen Sie den Wert "mA Val.
Fault" auf 0 ein (Pos. 4.6)
Ausgang 4-20mA

Table of Contents

Other manuals for Burkert SE56

Related product manuals