EasyManua.ls Logo

CAME ATI series - Page 59

CAME ATI series
64 pages
Go to English
Print Icon
To Next Page IconTo Next Page
To Next Page IconTo Next Page
To Previous Page IconTo Previous Page
To Previous Page IconTo Previous Page
Loading...
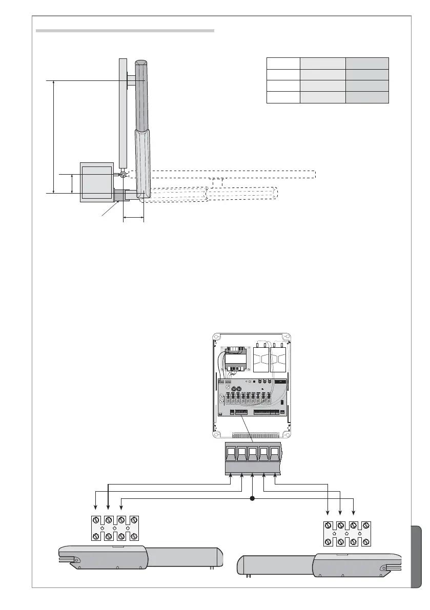
A3000A A5000A
A 130 mm 200 mm
B 130 mm 200 mm
E 720 mm 920 mm
A
B
E

,4
,4


15!$2/#/-!.$/
&53)"),)
,).%!!
:!
#(
!&
&53)"),%
#%.42!,).!
!
4,
4#!
42-
/
.
#(
56789%%
30##8""
,,
5
6
7
8
9
56
7
M2
56
7
M1
Стр.
9
-
Код
руководства:
119DV74
119DV74
версия
1.0
1.0 01/2011 © CAME cancelli automatici s.p.a. - Компания CAME cancelli automatici S.p.A. сохраняет за собой право на изменение содержащейся в этой инструкции информации в любое время и без предварительного уведомления.
РУССКИЙ
- Определите расстояния A и B (табл. 4).
- Соедините задний кронштейн с дополнительной пластиной и прикрепите конструкцию к столбу.
- Откройте ворота (на макс. 90°), определите расстояние E (табл. 4) и прикрепите передний кронштейн к створке.
- Выполните электрические подключения.
- Установите и отрегулируйте положение микровыключателя открывания.
5.9 Монтаж с открыванием наружу
Наружняя сторона объекта
Табл. 4
Внутренняя сторона объекта
Дополнительная
пластина

Related product manuals