EasyManua.ls Logo

CAME BKS08ALS - Page 11

CAME BKS08ALS
28 pages
Print Icon
To Next Page IconTo Next Page
To Next Page IconTo Next Page
To Previous Page IconTo Previous Page
To Previous Page IconTo Previous Page
Loading...
1 ÷ 2
p. 11 - Manual FA01208-EN - 07/2021 - © CAME S.p.A. - Translated original instructions
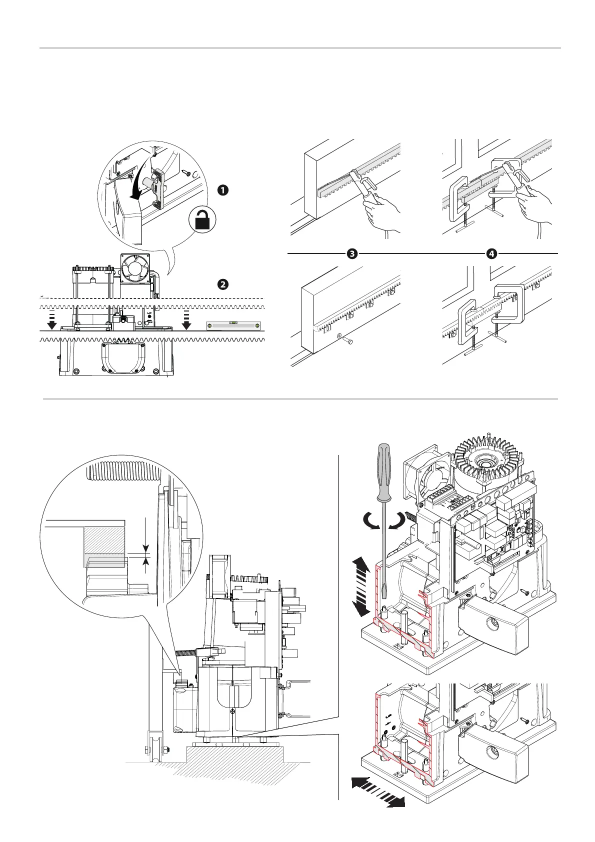
ADJUSTING THE PINION-RACK PAIRING
Manually open and close the gate and adjust the pinion-rack coupling distance using the threaded feet (vertical adjustment) and the holes
(horizontal adjustment). This prevents the gate's weight from bearing down on the operator.
FASTENING THE RACK
If the rack is already set up, the next step should be to adjust the rack-and-pinion coupling distance, otherwise, fasten it:
- release the operator;
- rest the rack above the operator pinion;
- weld or fasten the rack to the gate along its entire length.
To assemble the rack modules, use an extra piece and rest it under the joint, then fasten it using two clamps.

Related product manuals