EasyManua.ls Logo

CAME EMEGA E306 - Page 14

CAME EMEGA E306
40 pages
Print Icon
To Next Page IconTo Next Page
To Next Page IconTo Next Page
To Previous Page IconTo Previous Page
To Previous Page IconTo Previous Page
Loading...
Pag.
14
14 - Manuale FA 0119 8 M 0 6 - 06/2018 - © CAME S.p.A. - I contenuti del manuale sono da ritenersi suscettibili di modifica in qualsiasi momento senza obbligo di preavviso
. -
Traduzione delle istruzioni originali
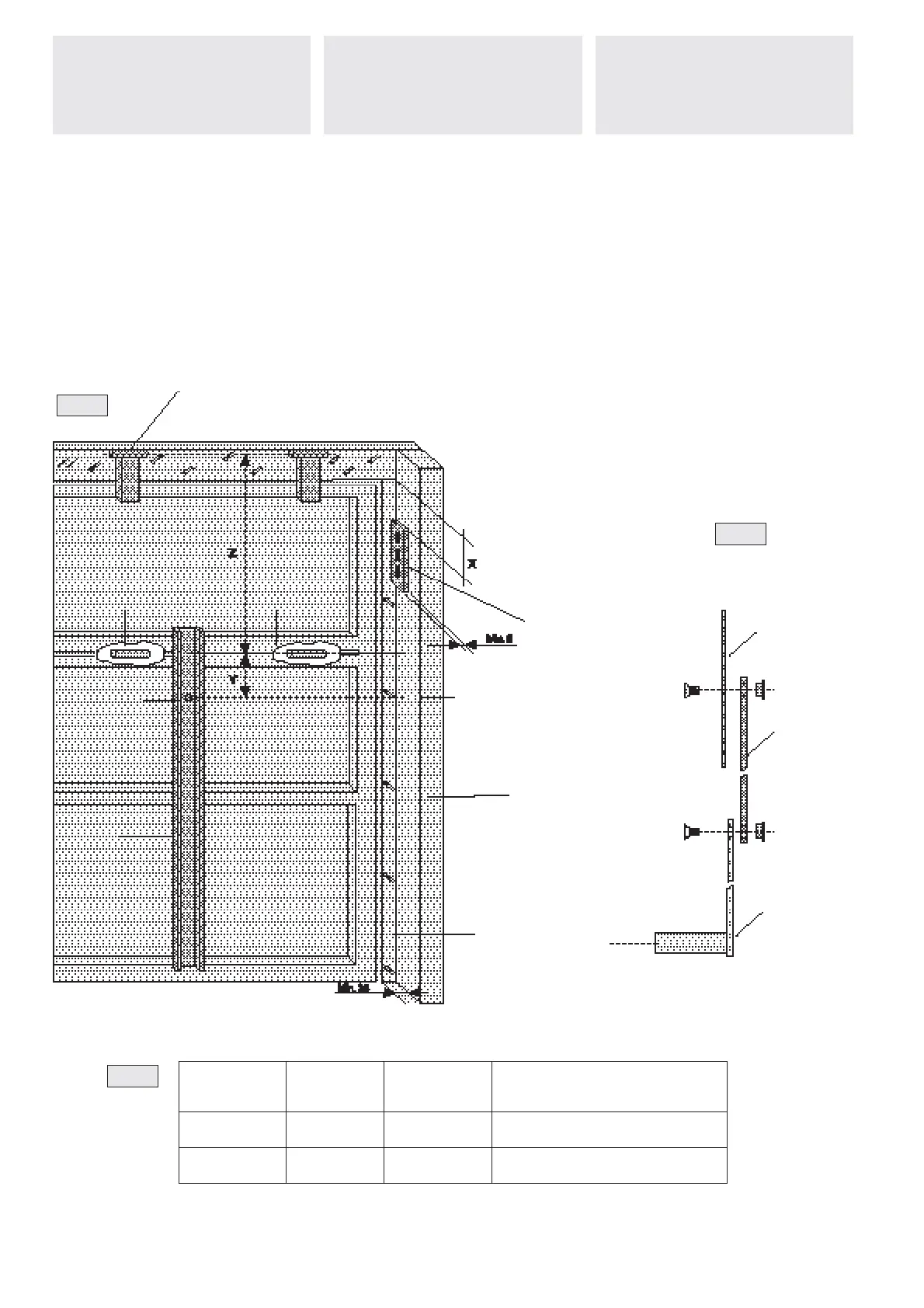
Fig. 1
Fig. 2
Tav. 1
PORTA BASCULANTE SNODATA A CONTRAPPESI O A MOLLE
CON GUIDA CUSCINETTO DI
MINIMO 25 MM E MOTORE
APPLICATO CENTRALMENTE.
ARTICULATED OVERHEAD DOOR WITH COUNTERWEIGHTS OR
SPRING BALANCING, WITH BEARING GUIDE OF AT LEAST 25
MM AND CENTRALLY-MOUNTED MOTOR.
PUERTA BASCULANTE ARTICULADA POR CONTRAPESOS O
MUELLES CON GUÍA COJINETE DE 25 MM MÍNIMO Y MOTOR
MONTADO EN EL CENTRO.
- Applicare la base-guida E001 e la sta a di ancoraggio
come da fi g. 1 rispettando le quote di tav.1.
Applicare il motore e i rinvii come da pag. 7 e i br
acci
snodati E783 come da fi
g. 2.
Installare gli accessori di rinvio E781A, il tubo di tra-
smissione E782A e proceder
e ai collegamenti elettrici
e alle r
egolazioni.
Nota: per l’installazione later
ale di uno o due motori,
veder
e pag. 11.
- Fit the base-guide E001 and the anchor br
ack
et as
shown in fi
g. 1. Observe the distances shown in table 1.
Fit the motor and the tr
ansmission system as shown
on page 7 and fi
t the ar
ticulated arms E783 as shown
in fi
g. 2.
Fit the E 781A and E 782A. Connect up the wiring and
perform the necessar
y adjustments.
Note: for later
al installation with one or two motors,
r
efer to page 11.
- Instale la base guía E001 y el estribo de anclaje, tal
como muestr
a la fi g. 1, r
espetando las medidas de la
tab. 1.Instale el motor y las transmisiones como se
describe en la pág. 7 y los br
azos articulados E783 como
muestra la fi g. 2.Instale los accesorios de tr
ansmisión
E781A, el tubo de tr
ansmisión E782A, y haga las cone-
xiones eléctricas y las regulaciones.
Nota: para la instalación lateral de uno o dos motores,
véase pág. 11.
*Se Z=800, E784 va accorciato a 400 mm
* If Z=800, E784 should be shortened to 400 mm * Si Z=800, E784 se debe acortar 400 mm
Cerniera superiore
Upper hinge
Bisagra superior
Sta a di ancoraggio
Achor bracket
Estribo de anclaje
Asse cerniera
Hinge axis
Eje Bisagra
Cerniera inferiore
Lower hinge
Bisagra Inferior
Foro “A”
Hole “A”
Agujero “A”
Base-guida
Base-guide
Base-guia
Guida cuscinetto
Bearing guide
Guia cojinete
Carter contrappeso
Counterweight casing
C
árter contrapeso
Asse motore
Motor axis
Eje motor
S
ta a di ancoraggio
Anchor Brakcket
Estribo de anclaje
Braccio superiore
Upper arm
Brazo superior
Braccio
Arm
Brazo
Z
mm
X
mm
Y
mm
BRACCIO -
ARM -
BRAZO
800÷1000 500 410 E783+E784*
<800 190 200 E783
Pag.
14
14 - Manuale FA 0119 8 M 0 6 - 06/2018 - © CAME S.p.A. - I contenuti del manuale sono da ritenersi suscettibili di modifica in qualsiasi momento senza obbligo di preavviso
. - Istruzioni originali

Related product manuals