EasyManua.ls Logo

CAME EMEGA E306 - Page 34

CAME EMEGA E306
40 pages
Print Icon
To Next Page IconTo Next Page
To Next Page IconTo Next Page
To Previous Page IconTo Previous Page
To Previous Page IconTo Previous Page
Loading...
Pag.
14
14 - Manuale FA 0119 8 M 0 6 - 06/2018 - © CAME S.p.A. - I contenuti del manuale sono da ritenersi suscettibili di modifica in qualsiasi momento senza obbligo di preavviso
. -
Traduzione delle istruzioni originali
Fig. 1
Fig. 2
Tav. 1
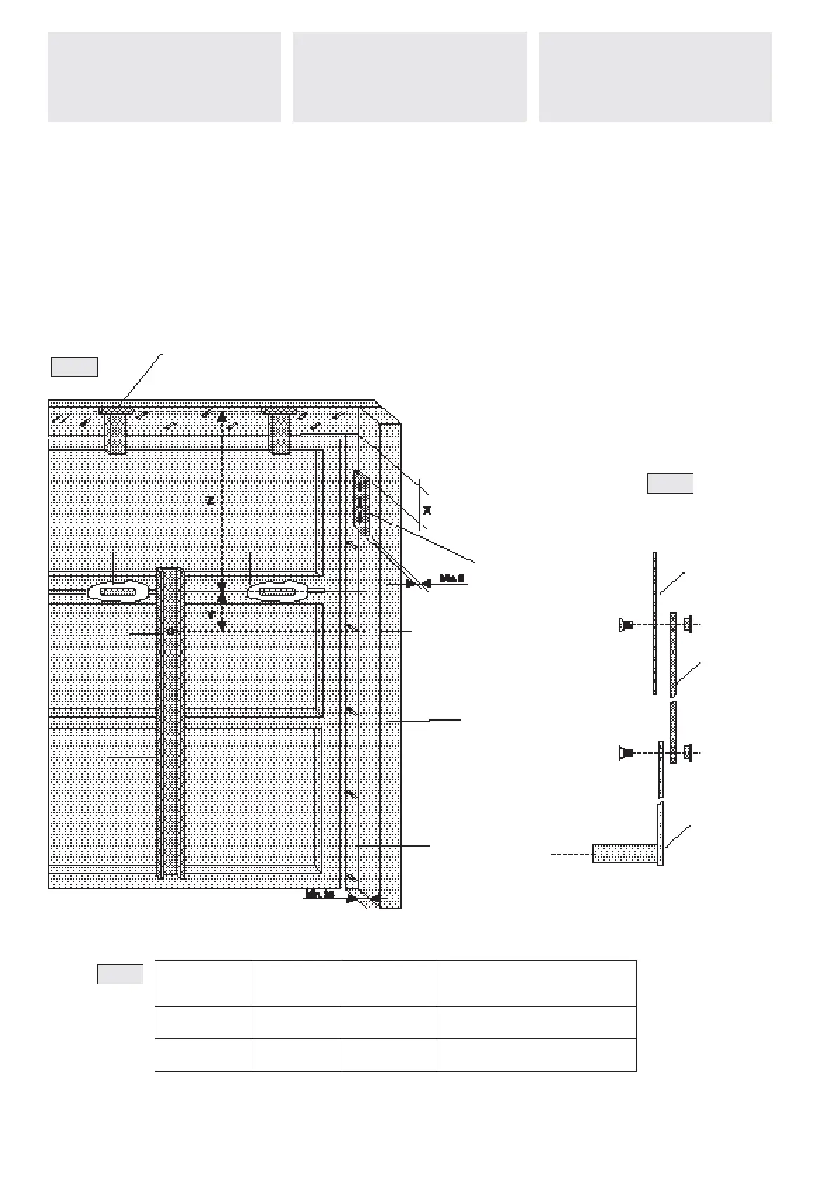
PORTE BASCULANTE ARTICULÉE À CONTREPOIDS OU À
RESSORTS AVEC GLISSIÈRE DU COUSSINET D’AU MOINS 25
MM ET MOTEUR MONTÉ AU CENTRE.
GELENKSCHWINGTOR MIT GEGENGEWICHTEN ODER FEDERN
MIT LAGERSCHIENE VON MINDESTENS 25 MM UND ZENTRAL
INSTALLIERTEM MOTOR.
- Monter la base de guidage E001 et la bride de fi xation
comme indiqué sur la fi g. 1, en respectant les cotes
du tableau 1.
Monter le moteur et les renvois comme indiqué à la
page 7.
Monter les bras articulés E783 comme indiqué sur
la fi g. 2.
Installer les accessoires de renvoi E 781A, le tube de
transmission E782A et e ectuer les branchements
électriques ainsi que les réglages.
N.B.: voir à la page 11 pour le montage latéral d’un ou
de deux moteurs.
- Die Führungsschienen-Basis E001 und den Veranke-
rungsbügel gemäß Abb. 1 montieren und dabei die auf
Tafel 1 angegebenen Maße beachten.Den Motor und die
Vorgelege wie auf Seite 7 angegeben montieren und die
Gelenkarme E783 gemäß Abb. 2.
Das Zubehör vom Vorgelege E 781A und das Antriebs-
rohr E 782A montieren. Dann die Stromanschlüsse und
Einstellungen durchführen.
Hinweis: bei seitlicher Installation von ein oder zwei
Motoren: siehe Seite 11.
* Wenn Z=800, muß E784 auf 400 mm verkürzt werden.
* Si Z=800, E784 doit être raccourci à 400 mm
Charniere
Scharnier
Oberes Scharnier
Etrier de lixation
Verankeringsbeugel
Verankerungsb
ügel
Axe du moteur
Motor as
Motorachse
Carter rail vertical
Verticale rail
Gegengewichtskasten
Guide coussinet
Wielgeleider
Lagerschiene
Charniere inferieure
Onderste scharnier
Unteres Scharnier
Axe de la charniere
Scharnieras
Scharnieachse
Trou “A”
Gat “A”
Bohrung “A”
Etrier de fi xation
Bevestigingsbeugel
Verankerungsb
ügel
Bras
Arm
Braz
Z
mm
X
mm
Y
mm
BRAS - ARMEN - HEBELARM
800÷1000 500 410 E783+E784*
<800 190 200 E783
KANTELPOORT IN TWEE DELEN MET TEGENGEWICHTEN OF
VEREN MET 25MM TUSSEN RAIL EN TEGENGEWICHTEN -
MOTOR CENTRAAL GEPLAATST.
- Plaats de bevestigingsplaat E001 en beugel zoals
getoond in fi g. 1, respecteer tevens de afstanden
vermeld in fi g. 1
- Bevestig de motor en telescopische armen zoals
vermeld op blz. 7. Gebruik de knikarmen E783 zoals
getoond in fi g. 2.
- Bevestig de toebehoren E781A en E782A.
- Doe de elektrische aansluitingen en afregelingen.
NB: voor laterale installatie van 2 motoren, zie blz. 11
Als Z=800, E784 moet op 400mm Bevestigd worden.
Base guide
Montage plaat
Führungsschienen-Basis
Bras superieur
Bovenste arm
Oberer arm
Pag.
14
14 - Manuale FA 0119 8 M 0 6 - 06/2018 - © CAME S.p.A. - I contenuti del manuale sono da ritenersi suscettibili di modifica in qualsiasi momento senza obbligo di preavviso
. - Istruzioni originali

Related product manuals