EasyManua.ls Logo

CAME EMEGA E306 - Page 35

CAME EMEGA E306
40 pages
Print Icon
To Next Page IconTo Next Page
To Next Page IconTo Next Page
To Previous Page IconTo Previous Page
To Previous Page IconTo Previous Page
Loading...
Pag.
15
15 - Manuale FA01198 M 0 6 - 06/2018 - © CAME S.p.A. - I contenuti del manuale sono da ritenersi suscettibili di modifica in qualsiasi momento senza obbligo di preavviso
. -
Traduzione delle istruzioni originali
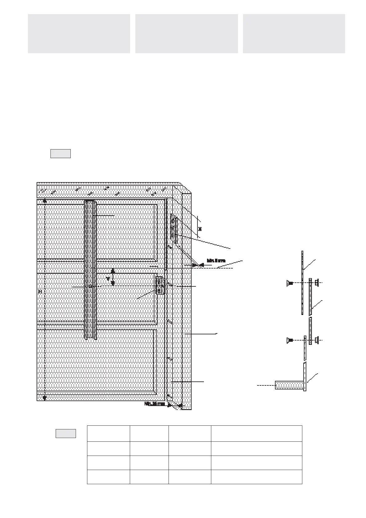
Fig. 1
- Monter la base de guidage E001et la bride de fi xation
comme indiqué sur la fi g. 1, en respectant les cotes
du tableau 1.
- Monter le moteur et les renvois comme indiqué à la
page 7. Monter les bras articulés E783 comme indiqué
sur la fi g. 2.
- Installer les accessoires de renvoi E781A, le tube de
transmission E 782A et e ectuer les branchements
électriques ainsi que les réglages.
N.B.: voir à la page 11 pour le montage latéral d’un ou
de deux moteurs.
PORTE BASCULANTE À CONTREPOIDS OU À RESSORTS AVEC
GLISSIÈRE DU COUSSINET D’AU MOINS 25 MM ET MOTEUR
MONTÉ AU CENTRE
- Die Führungsschienen-Basis E001 und den Veranke-
rungsbügel gemäß Abb. 1 montieren und dabei die auf
Tafel 1 angegebenen Maße beachten.
- Den Motor und die Vorgelege wie auf Seite 7 angege-
ben montieren und die Gelenkarme E783 gemäß Abb. 2.
- Das Zubehör vom Vorgelege E 781A und das Antriebs-
rohr E 782A montieren. Dann die Stromanschlüsse und
Einstellungen durchführen.
Hinweis: bei seitlicher Installation von ein oder zwei
Motoren: siehe Seite 11.
SCHWINGTOR MIT GEGENGEWICHTEN ODER FEDERN MIT
LAGERSCHIENE VON MINDESTENS 25 MM UND ZENTRAL
INSTALLIERTEM MOTOR
Tav. 1
Etrier de fi xation
Bevestigingsbeugel
Verenkerungsb
ügel
Axe bras de la porte
As van de poort
Achse Torarm
Axe du moteur
As van de motor
Motorachse
Carter rail vertical
Verticale rail
Gegengewichtskasten
Guide coussinet
Wielgeleider
I agerschiene
Base-guide
Montage plaat
F
ührungsschienen-Basis
Trou “A”
Gat “A”
Bohrung “A”
Renvoi
Overbrenging
Vorgelege
Etrier de fi xation
Bevestigingsbeugel
Verankerungsbügel
Bras superieur
Bovenste arm
Oberer arm
H
mm
X
mm
Y
mm
BRAS - ARMEN -HEBELARM
2400 190 200 E783
2400-2700 190 200 E783+E784
>2700 500 0 E783+E784
KANTELPOORT MET TEGENGEWICHTEN OF VEREN - MIN.
25MM TUSSEN RAIL EN BAK MET TEGENGEWICHTEN -
MOTOR CENTRAAL GEPLAATST
- Plaats de bevestigingsplaat E001 en beugel zoals
getoond in fi g. 1, respecteer tevens de afstanden
vermeld in fi g. 1
- Bevestig de motor en telescopische armen zoals
vermeld op blz. 7. Gebruik de knikarmen E783.
- Bevestig de toebehoren E781A en E782A.
- Doe de elektrische aansluitingen en afregelingen.
NB: voor laterale installatie van 2 motoren, zie blz. 11
Bras
Arm
Hebel
arm
Pag.
15
15 - Manuale FA01198 M 0 6 - 06/2018 - © CAME S.p.A. - I contenuti del manuale sono da ritenersi suscettibili di modifica in qualsiasi momento senza obbligo di preavviso
. - Istruzioni originali

Related product manuals