EasyManua.ls Logo

Camus Hydronics MFH060 - Page 28

Camus Hydronics MFH060
66 pages
Print Icon
To Next Page IconTo Next Page
To Next Page IconTo Next Page
To Previous Page IconTo Previous Page
To Previous Page IconTo Previous Page
Loading...
24
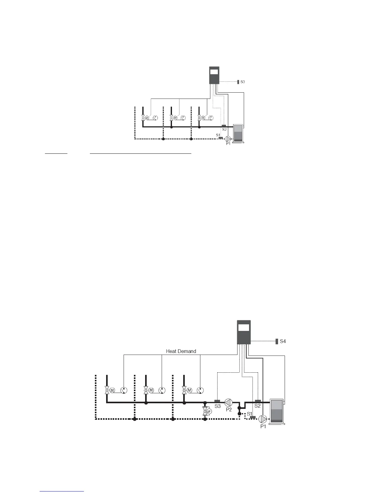
Figure 17: Mode 4 Piping & Electrical Layout
Mode 5: Outdoor Reset using System Sensor
This mode is designed for hydronic heating. Once a heat demand is present, the BTC 1 turns on the
appliance pump and modulates the boiler to maintain the calculated outdoor reset target at the system
sensor. Outdoor reset calculates the boiler target temperature based on the outdoor air temperature and
reset ratio.
A heat demand is generated when a voltage between 24VAC and 120VAC is applied across CD
(common demand) and Ht D (heat demand). Once voltage is applied, the BTC 1 turns on the Dem 1
segment in the display. If warm weather shut down (WWSD) is activated, the WWSD segment is lit.
If WWSD is not activated and the system sensor is ½ (half) of the differential below the calculated BOIL
TARGET, the control then changes the modulation output to the START modulation setting and closes
the Stage contacts (pins 15 &16) to proceed to trial for ignition. The burner remains at minimum
modulation until the flame is proved and then the modulating output changes the boiler output to maintain
the calculated boiler target temperature at the system sensor. If the system sensor reaches ½ (half) of the
differential above the BOIL TARGET, the appliance is shut off. The appliance pump continues to circulate
until the PUMP DELAY timer expires. In this case, it is imperative that the system pump operates
continuously in order to provide constant circulation past the system sensor.
The water temperature is controlled based on a calculated boiler target temperature. The boiler start
(BOIL START) temperature is pre-set to 70
o
F and the auto re-set limit is set to 21F and is fixed. In
addition to the auto reset limit the factory installs a manual re-set limit set to 250°F.
Figure 18: Mode 5 Piping & Electrical Layout

Table of Contents

Related product manuals