EasyManua.ls Logo

CHAFFOTEAUX ARIANEXT COMPACT - Composizione del Sistema

CHAFFOTEAUX ARIANEXT COMPACT
Print Icon
To Next Page IconTo Next Page
To Next Page IconTo Next Page
To Previous Page IconTo Previous Page
To Previous Page IconTo Previous Page
Loading...
35
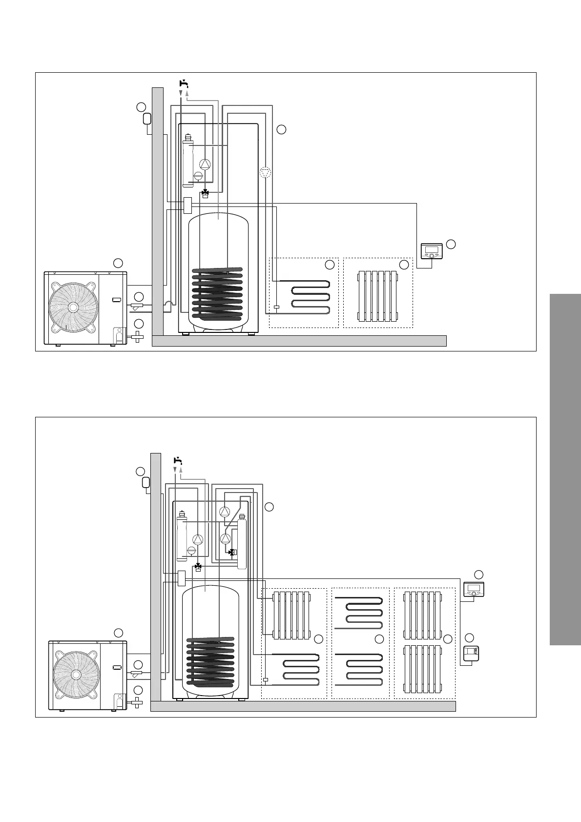
Generalità
ARIANEXT COMPACT
FSP 1 ZONA
L’unità interna dispone di un circolatore che garantisce la portata di fl uido tra l’unità esterna e l’impianto di riscaldamento.
Tale unità dispone inoltre di due resistenze elettriche da 2 kW ciascuna e di un vaso d’espansione.
FSP 2 ZONE
L’unità interna dispone di un circolatore che garantisce la portata di fl uido tra l’unità esterna e il separatore idraulico.
Tale unità dispone inoltre di due resistenze elettriche da 2 kW ciascuna, di un vaso d’espansione, di due ulteriori circolatori e di una valvola misce-
latrice che garantisce l’approvvigionamento di due zone riscaldamento a due diverse temperature.
VE
1
(*)
6
45
2
7
8
3
VE
1
7
8
4 5 6
2
9
10
3
Legenda:
1. Unità Interna
2. Unità esterna
3. Sonda esterna
4. Zona riscaldamento
alta temperatura
5. Zona riscaldamento
bassa temperatura
6. Controllo Remoto Expert Control
7. Filtro
8. Cartuccia antigelo
(*) Pompa ausiliaria (non in dotazione)
Legenda:
1. Unità Interna
2. Unità esterna
3. Sonda esterna
4. Due zone riscaldamento
alta e bassa temperatura
5. Due zone riscaldamento
bassa temperatura
6. Due zone riscaldamento
alta temperatura
7. Controllo Remoto Expert Control
8. Comando Remoto Zone Control
9. Filtro
10. Cartuccia antigelo
NOTA: Installazioni con Impianto a Pavimento
Nelle installazioni con impianto a pavimento, prevedere l’impiego di un dispositivo di sicurezza sul circuito di mandata riscaldamento secondo le
indicazioni del DTU 65.11. Per la connessione elettrica del termostato vedere il paragrafo “Connessioni Elettriche”.
In caso di temperatura di mandata troppo elevata, il sistema si arresterà sia in modalità di funzionamento sanitaria che riscaldamento e sul dispo-
sitivo di controllo remoto apparirà il codice errore 116 “Termostato pavimento aperto”. Il sistema ripartirà alla chiusura del termostato a riarmo
manuale.

Table of Contents

Related product manuals