EasyManua.ls Logo

CHAFFOTEAUX ARIANEXT COMPACT - Dimensioni E Pesi; Distanze Minime Per Linstallazione; Scelta del Posizionamento

CHAFFOTEAUX ARIANEXT COMPACT
Print Icon
To Next Page IconTo Next Page
To Next Page IconTo Next Page
To Previous Page IconTo Previous Page
To Previous Page IconTo Previous Page
Loading...
37
Installazione dell’unità esterna
ARIANEXT COMPACT
Scelta del posizionamento
Evitare il posizionamento dell’unità esterna in luoghi di diffi cile ac-
cesso per le successive operazioni di installazione e manutenzione.
Evitare il posizionamento in prossimità di fonti di calore.
Evitare il posizionamento in luoghi ove si sottopone l’unità esterna
a continue vibrazioni.
Non posizionare l’unità esterna su strutture portanti che non ne
garantiscano il sostegno.
Evitare il posizionamento in prossimità di conduttore o serbatoi di
gas combustibili.
Evitare il posizionamento che preveda esposizioni a vapori d’olio.
Evitare i posizionamento caratterizzati da condizioni ambientali
particolari.
Scegliere un posizionamento dove il rumore e l’aria emessa dall’uni-
tà esterna non disturbino i vicini.
Scegliere un posizionamento al riparo dal vento.
Prevedere un posizionamento che consenta il mantenimento delle
distanze di installazione necessarie.
Evitare il posizionamento in un luogo che impedisca l’accesso a
porte e/o corridoi.
La struttura del suolo di appoggio deve poter sostenere il peso
dell’unità esterna e ridurre al massimo le possibili vibrazioni.
Se l’unità esterna viene installata in una località dove sono previste
abbondanti precipitazioni nevose, installare l’unità ad almeno 200
mm al di sopra del livello solito di caduta neve o utilizzare una staffa
di sostegno per l’unità esterna.
Attenzione
Al fi ne di non danneggiare i componenti elettronici, collegare in
maniera opportuna tutti i cavi forniti.
Per le connessioni, utilizzare esclusivamente i cavi consigliati e pro-
vvedere al collegamento presso i connettori indicati.
Assicurarsi che i collegamenti di terra siano adeguatamente dimen-
sionati; una messa a terra inadeguata può causare dispersioni dei
carichi elettrici.
Non collegare le tubazioni di gas e acqua a dispositivi parafulmine o
a connessioni di terra dedicate ai cavi telefonici.
Attenzione
Non modifi care l’unità esterna, disattivando i dispositivi di
sicurezza né creando dei bypass sugli interruttori di alimenta-
zione.
Contattare un Centro di Assistenza Tecnica in presenza delle seguenti
situazioni:
Cavo di alimentazione surriscaldato o danneggiato
Rumori insoliti dell’unità esterna durante il funzionamento
Attivazione frequente dei dispositivi di sicurezza
Odori insoliti (in particolare, odore di bruciato proveniente dall’unità
esterna)
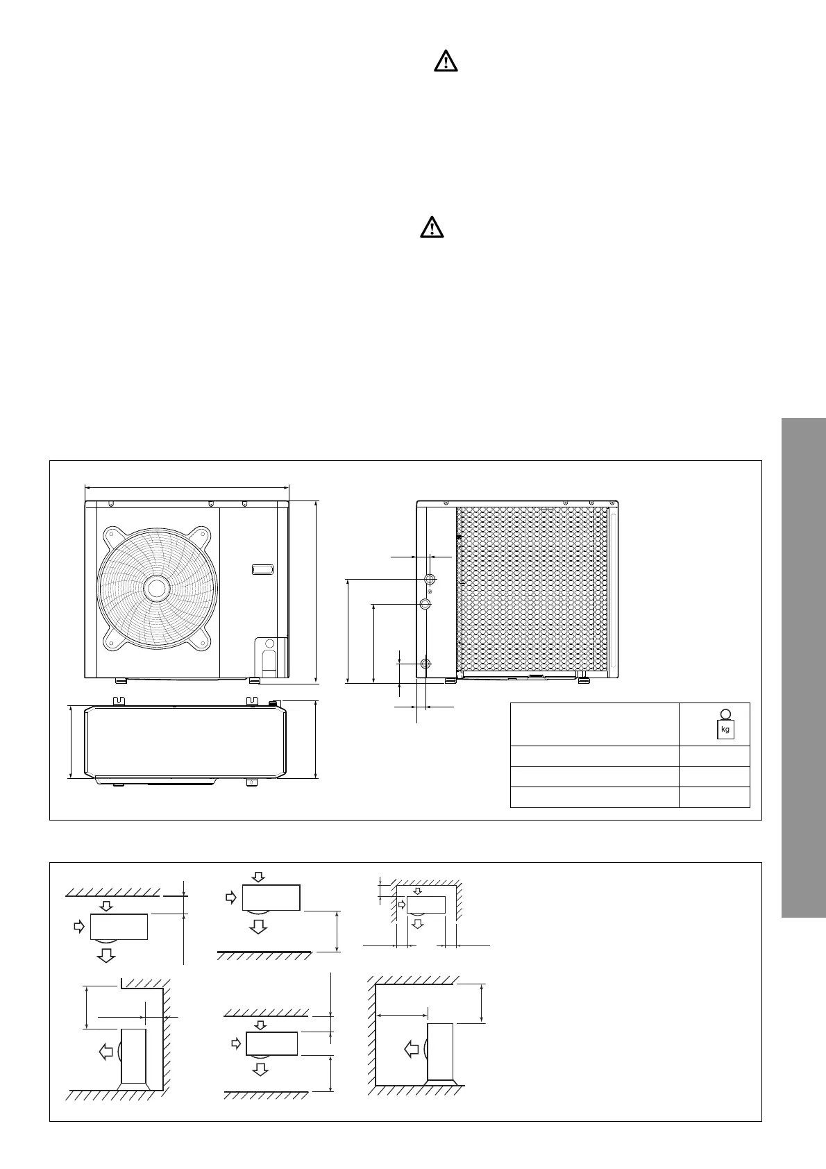
ARIANEXT EXTERNAL UNIT
Kg
04 kW 56
06 kW 58
08 kW 68
1’M
1’M
1/2’F
908
821
326
350
87
356
466
60
40
Dimensioni e Pesi
Distanze minime per l’installazione
150
500
150
300
150
500
150
1000
1000
1000
ATTENZIONE
Prima dell’installazione verifi care la resis-
tenza e l’orizzontalità della base di appoggio.
Basandosi sulle immagini, fi ssare solidamente
la base dell’unità esterna al suolo, servendosi
di opportuni bulloni d’ancoraggio (M10 X 2
paia).
Se l’unità esterna dovesse essere esposta a
notevoli correnti d’aria, proteggerla mediante
uno schermo e verifi carne la corretta funzio-
nalità.

Table of Contents

Related product manuals