EasyManua.ls Logo

CHAFFOTEAUX ARIANEXT COMPACT - Page 5

CHAFFOTEAUX ARIANEXT COMPACT
Print Icon
To Next Page IconTo Next Page
To Next Page IconTo Next Page
To Previous Page IconTo Previous Page
To Previous Page IconTo Previous Page
Loading...
5
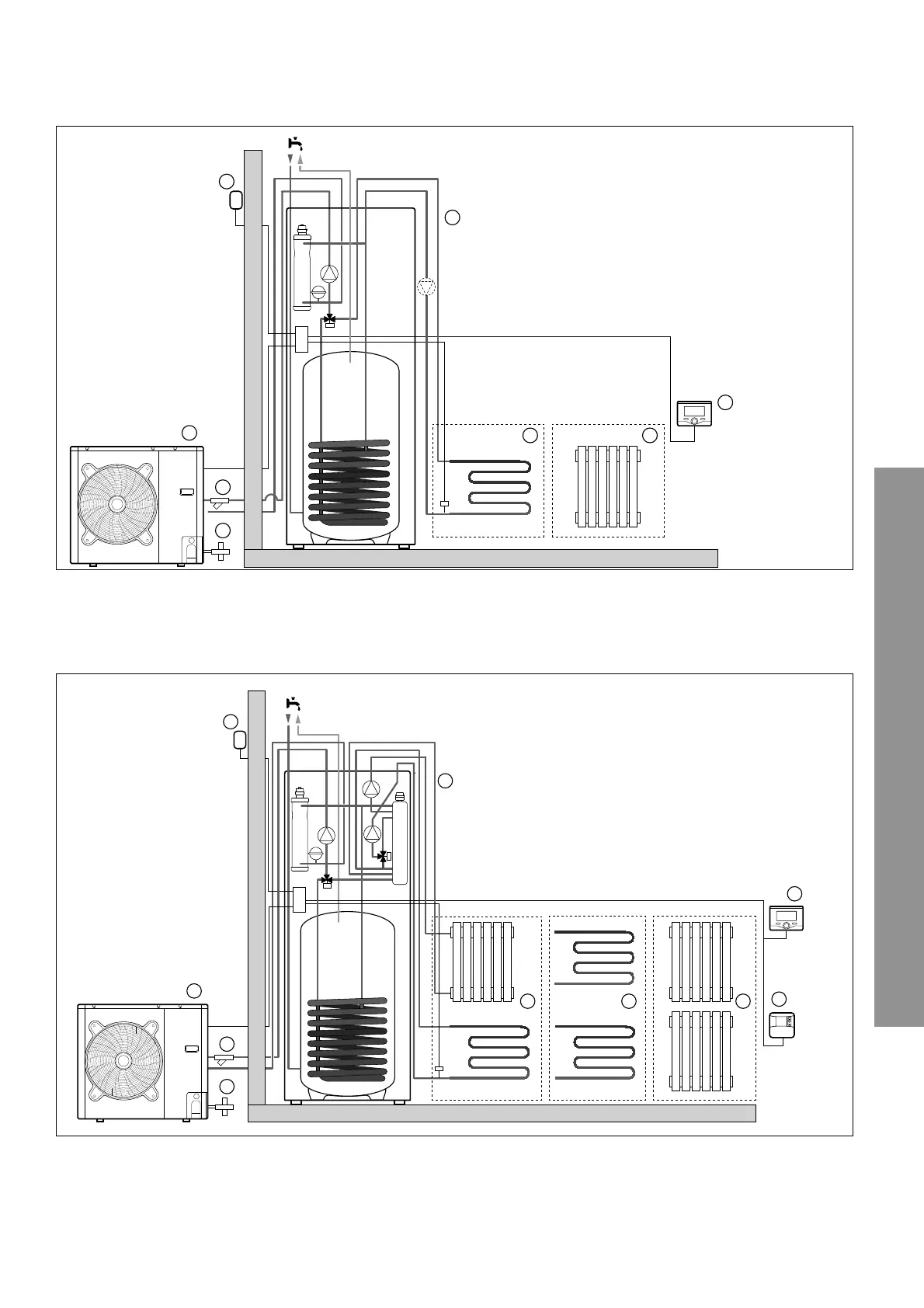
Généralités
ARIANEXT COMPACT
FSP 2 ZONES
L’unité intérieure dispose d’un circulateur qui assure le débit entre l’unité extérieure et le séparateur hydraulique. Elle dispose de deux autres
circulateurs, une vanne de mélange permettant d’alimenter deux zones de chauffage à des températures différentes. Elle dispose aussi de deux
résistances électriques de 2 kW chacune et d’un vase d’expansion.
FSP 1 ZONE
L’unité intérieure dispose d’un circulateur qui assure le débit entre l’unité extérieure et l’installation chauffage. Elle dispose aussi de deux résis-
tances électriques de 2 kW chacune et d’un vase d’expansion.
NOTE: Installations avec plancher chauffant
Dans les installations avec plancher chauffant, monter un organe de sécurité sur le départ chauffage du plancher suivant les recommandations
DTU 65.11. Pour la connexion électrique du thermostat voir paragraphe “Raccordements Electriques”.
Dans le cas d’une température départ trop élevée, le système s’arrêtera aussi bien en sanitaire qu’en chauffage et sur l’affi cheur apparaît le
code erreur 936 “thermostat plancher ouvert”. Le système redémarre à la fermeture du thermostat à réarmement automatique.
VE
1
(*)
6
45
2
7
8
3
VE
1
7
8
4 5 6
2
9
10
3
Légende:
1. Unité intérieure
2. Unité extérieure
3. Sonde de température extérieure
4. Zone radiateur
5. Zone plancher chauffant
6. Commande à distance Expert Control
7. Filtre
8. Cartouche anti-gel
(*) Pompe auxiliaire (pas fourni)
Légende:
1. Unité intérieure
2. Unité extérieure
3. Sonde de température extérieure
4. Zone plancher chauffant et radiateur
5. Zone plancher chauffant
6. Zone radiateur
7. Commande à distance Expert Control
8. Sonde d’ambiance Zone Control
9. Filtre
10.Cartouche anti-gel

Table of Contents

Related product manuals