EasyManua.ls Logo

Chigo CCB-18HVR4 - Page 28

Chigo CCB-18HVR4
159 pages
Print Icon
To Next Page IconTo Next Page
To Next Page IconTo Next Page
To Previous Page IconTo Previous Page
To Previous Page IconTo Previous Page
Loading...
R3250Hz Universal Outdoor Series Technical Manual
24
GD Chigo Heating & Ventilation Equipment Co., Ltd.
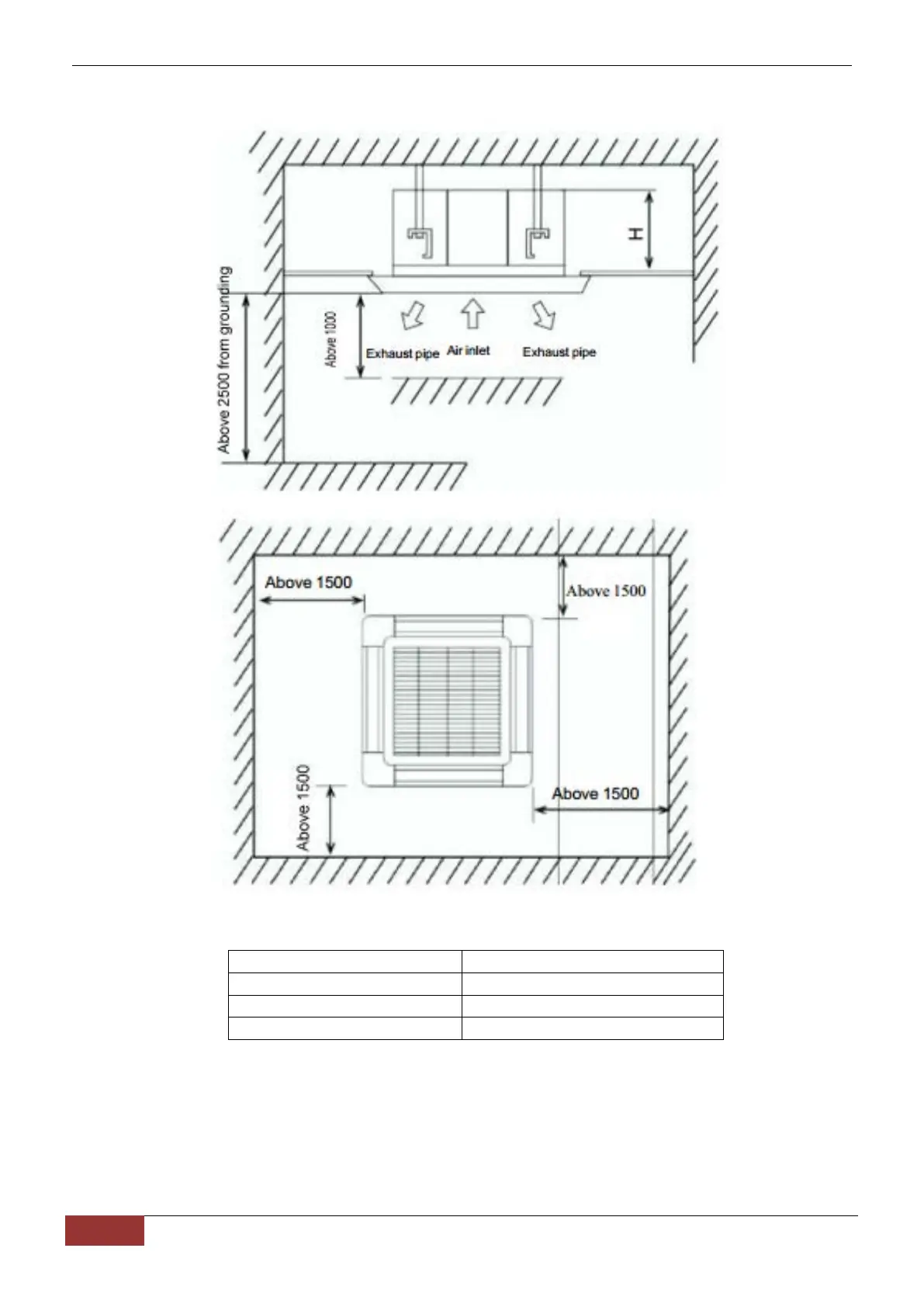
Compact 4-way cassette
Model
Height (mm)
3.5kW,5.3kW
267
5.3kW, 7.0kW
230
10.5kW, 14kW, 16kW
285

Table of Contents

Related product manuals