EasyManua.ls Logo

Chigo CCB-18HVR4 - Service Space

Chigo CCB-18HVR4
159 pages
Print Icon
To Next Page IconTo Next Page
To Next Page IconTo Next Page
To Previous Page IconTo Previous Page
To Previous Page IconTo Previous Page
Loading...
R3250Hz Universal Outdoor Series Technical Manual
23
GD Chigo Heating & Ventilation Equipment Co., Ltd.
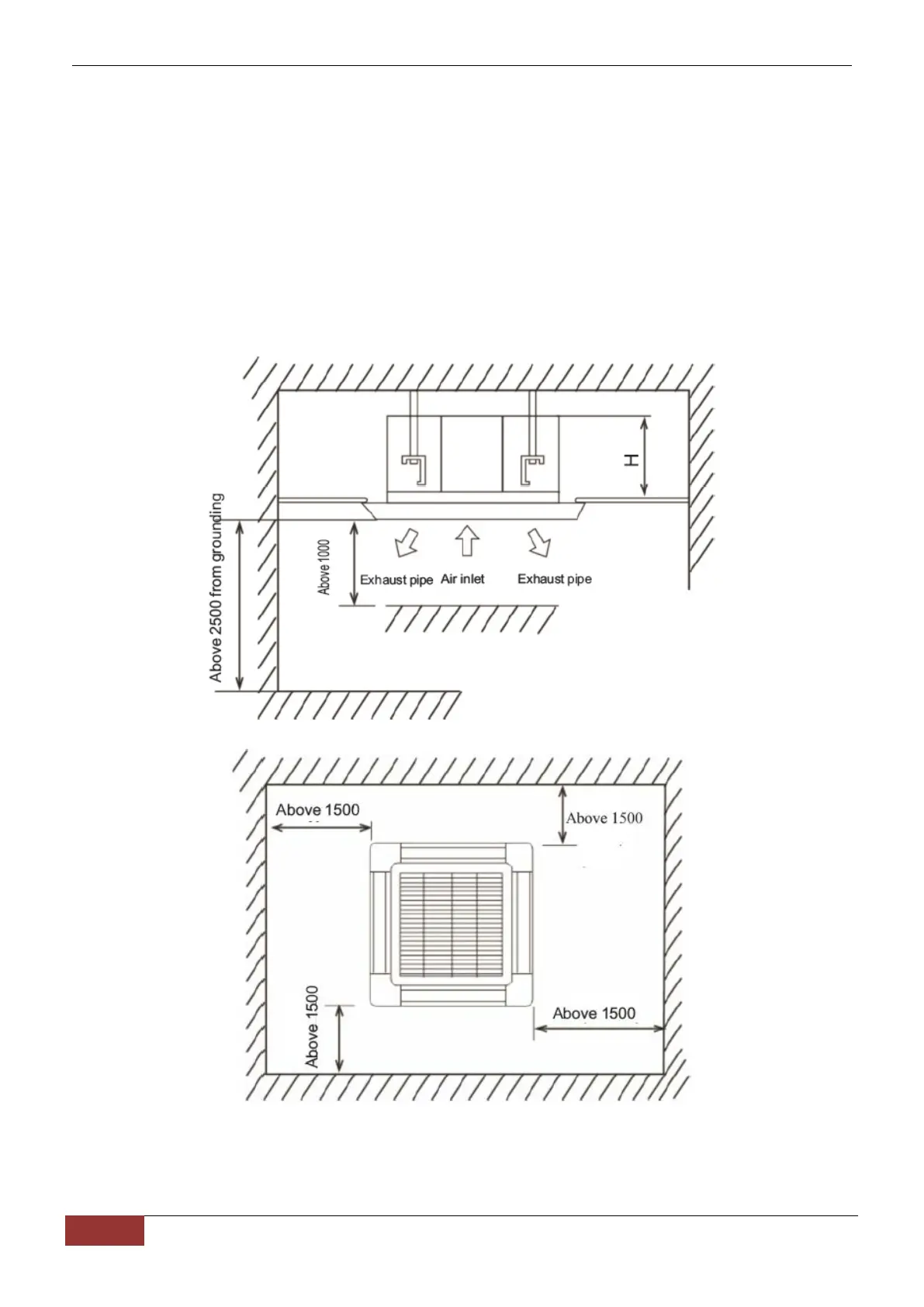
4. Service Space
The indoor unit should be installed in a location that meets the following requirements:
4.1 There is enough interspace for installation and maintenance.
4.2 The ceiling is horizontal, and its structure can endure the weight of the indoor unit.
4.3 The outlet and the inlet are not impeded, and the influence of external air is the least.
4.4 The air flow can reach throughout the room.
4.5 The connecting pipe and drainpipe could be extracted out easily.
4.6 There is no direct radiation from heaters.
Round-flow cassette:

Table of Contents

Related product manuals