EasyManua.ls Logo

Cisco UCS B200 M4 - Page 43

Cisco UCS B200 M4
46 pages
Print Icon
To Next Page IconTo Next Page
To Next Page IconTo Next Page
To Previous Page IconTo Previous Page
To Previous Page IconTo Previous Page
Loading...
c) Install the TPM to the TPM socket on the server motherboard and secure it using the one-way screw that
is provided. See the figure below for the location of the TPM socket.
d) Return the blade server to the chassis, power it on, and allow it to be automatically reacknowledged,
reassociated, and recommissioned.
e) Continue with enabling TPM support in the server BIOS in the next step.
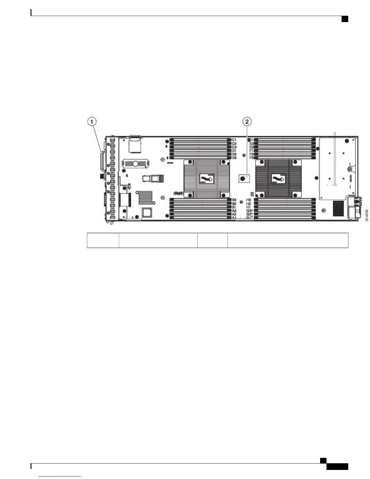
Figure 23: TPM Socket Location
TPM socket on motherboard2Front of server1
Step 2
Enable TPM Support in the BIOS.
TPM support is enabled by default in Cisco UCS Manager Release 2.2(4) and later BIOS policy.Note
If your Cisco UCS Manager Release 2.2(4) and later BIOS policy is using the default and TPM support is
already enabled, skip this procedure and go to the next step.
If TPM support was disabled for any reason, use the following procedure to enable it.
a) In the Cisco UCS Manager Navigation pane, click the Servers tab.
b) On the Servers tab, expand Servers > Policies.
c) Expand the node for the organization where you want to configure the TPM.
d) Expand BIOS Policies and select the BIOS policy for which you want to configure the TPM.
e) In the Work pane, click the Advanced tab.
f) Click the Trusted Platform sub-tab.
g) To enable TPM support, click Enable or Platform Default.
h) Click Save Changes.
i) Continue with the next step.
Step 3
Enable TXT Support in the BIOS Policy.
Intel Trusted Execution Technology (TXT) provides greater protection for information that is used and stored
on the business server. A key aspect of that protection is the provision of an isolated execution environment
and associated section of memory where operations can be conducted on sensitive data, invisibly to the rest
Cisco UCS B200 M4 Blade Server Installation and Service Note
35
Servicing a Blade Server
Enabling the Trusted Platform Module

Other manuals for Cisco UCS B200 M4

Related product manuals