EasyManua.ls Logo

Cisco UCS B200 M4 - Enabling the Trusted Platform Module

Cisco UCS B200 M4
46 pages
Print Icon
To Next Page IconTo Next Page
To Next Page IconTo Next Page
To Previous Page IconTo Previous Page
To Previous Page IconTo Previous Page
Loading...
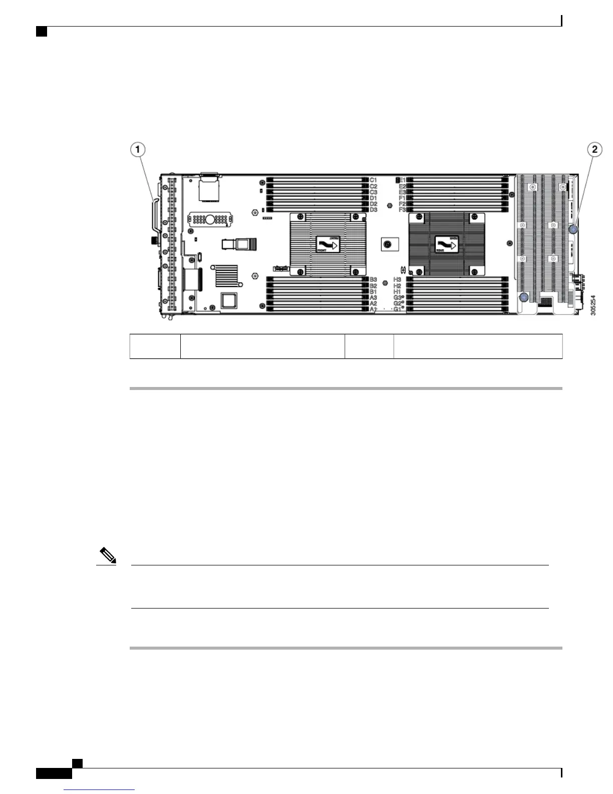
The following figure shows a GPU installed in a B200 M4 blade server.
Figure 22: Installed nVidia M6 GPU
Custom standoff screw2Front of server1
Enabling the Trusted Platform Module
The Trusted Platform Module (TPM) is a component that can securely store artifacts used to authenticate the
server. These artifacts can include passwords, certificates, or encryption keys. A TPM can also be used to
store platform measurements that help ensure that the platform remains trustworthy. Authentication (ensuring
that the platform can prove that it is what it claims to be) and attestation (a process helping to prove that a
platform is trustworthy and has not been breached) are necessary steps to ensure safer computing in all
environments. It is a requirement for the Intel Trusted Execution Technology (TXT) security feature, which
must be enabled in the BIOS settings for a server equipped with a TPM.
TPM installation is supported after-factory. However, a TPM installs with a one-way screw and cannot
be replaced or moved to another server. If a server with a TPM is returned, the replacement server must
be ordered with a new TPM.
Note
Procedure
Step 1
Install the TPM hardware.
a) Power off, decommission, and remove the blade server from the chassis.
b) Remove the blade server cover.
Cisco UCS B200 M4 Blade Server Installation and Service Note
34
Servicing a Blade Server
Enabling the Trusted Platform Module

Other manuals for Cisco UCS B200 M4

Related product manuals