EasyManua.ls Logo

ClimateMaster Tranquility TTH072 Series - Page 29

ClimateMaster Tranquility TTH072 Series
56 pages
Print Icon
To Next Page IconTo Next Page
To Next Page IconTo Next Page
To Previous Page IconTo Previous Page
To Previous Page IconTo Previous Page
Loading...
29
climatemaster.com
THE SMART SOLUTION FOR ENERGY EFFICIENCY
Tranquility
®
30 (TT) Series
Rev.: 07/18/13
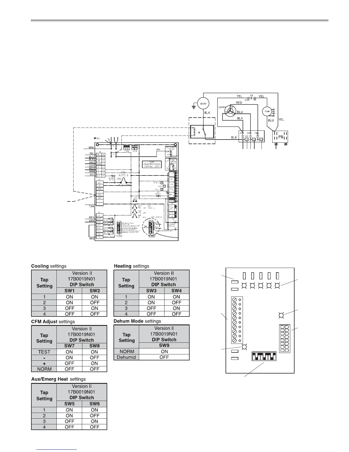
ECM Blower Control
Table 5: ECM Board Tap Settings
Y
GGGGR
W
O
Y2
Y1
G
R
C
Y2
Y1
G
O
W
C
R
DH
AL1
A
A
AL1
SW1
SW2
SW3
SW4
SW5
SW6
SW7
SW8
SW9
OFF
ON
G
DEHUM
CFM
TB1
J1
S1
Thermostat
Input LEDs
CFM Counter
1 flash per 100 CFM
ECM Motor
Low Voltage
Connector
1/4" Spade
Connections
to CXM or
DXM Board
Thermostat
Connections
Dehumidification
LED
Fan Speed Selection DIP Switch
Figure 23: ECM Version II Interface Layout
The ramp down feature may be eliminated during an
ESD (Emergency Shut Down) situation when using a DXM
unit controller. A DPDT relay is required to break the line
voltage to the ECM motor during ESD. This relay can be
wired as shown below to eliminate the ramp down (and
operation) of the ECM blower motor.

Related product manuals