EasyManua.ls Logo

ClimateMaster Tranquility TY Series - Model Nomenclature

ClimateMaster Tranquility TY Series
56 pages
Print Icon
To Next Page IconTo Next Page
To Next Page IconTo Next Page
To Previous Page IconTo Previous Page
To Previous Page IconTo Previous Page
Loading...
climatemaster.com
3
Tranquility
®
22
(
TY
)
Series
Rev.: July 8, 2021
THE SMART SOLUTION FOR ENERGY EFFICIENCY
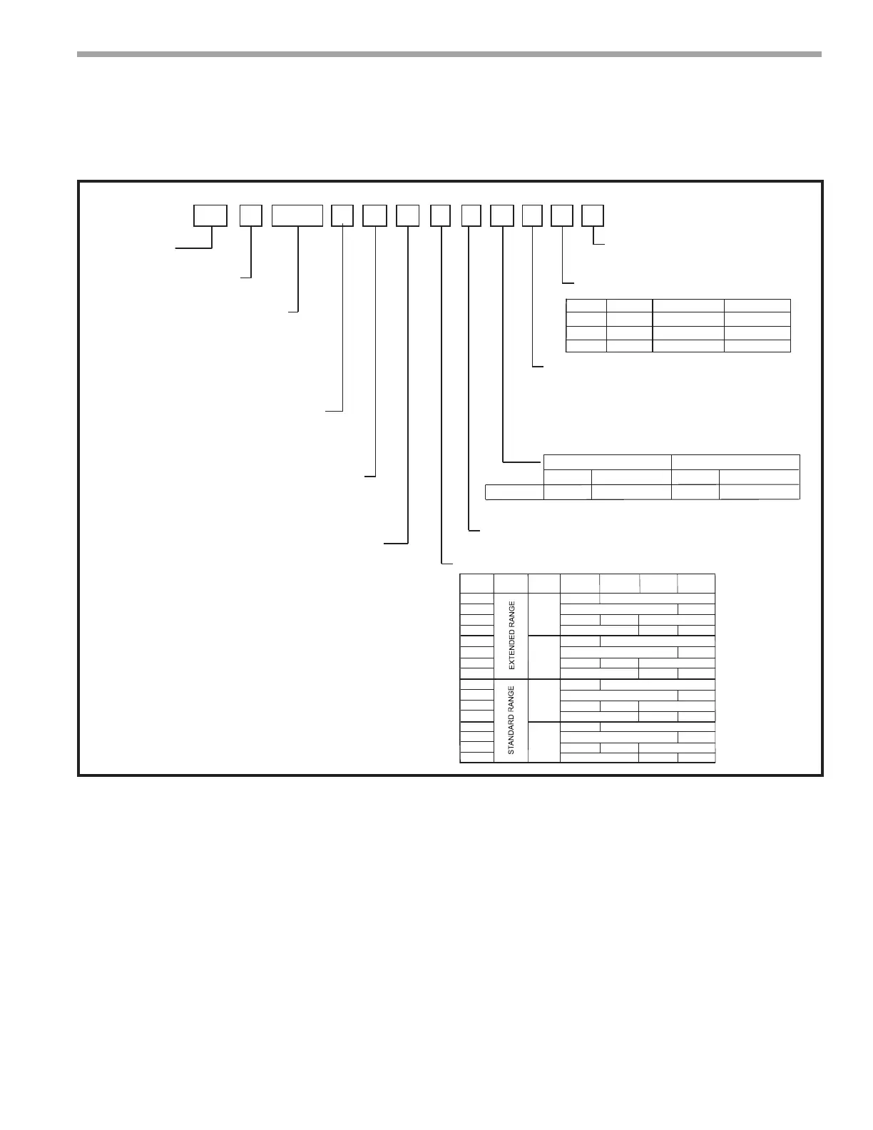
Model Nomenclature
Note: Above model nomenclature is a general reference. Consult individual engineering guides for detailed information.
A = 030, 042, 048
B = 024, 036, 060
A0 2 4 DG 3 0 B L T
4 5 6 7
8
9 10 11 12 13 14
024
UNIT SIZE
030
RETURN AIR FLOW CONFIGURATION
VOLTAGE
CONTROLS
D = DXM2
REVISION LEVEL
HEAT EXCHANGER OPTIONS
CABINET
SUPPLY AIR FLOW &
MOTOR CONFIGURATION
TY
1 2
TY = Tranquility
®
22 Digital
SERIES
V
3
V = Vertical Up
CONFIGURATION
Standard
Copper
Cupro-Nickel
A J
0 = None
WATER CIRCUIT OPTIONS
S
15
S = Standard
STANDARD
H = Horizontal
036
042
Supply
Configuration
Motor
T TYV
B TYH
S TYH
Top
Back
Straight
ECM
ECM
ECM
048
Tin Plated Air Coil
060
P = Left Return
C = Right Return
OPTION
1
A
J
K
2
C
L
M
3
E
N
P
1” FILTER
RAIL
RANGE
ULTRA
QUIET
2” FILTER
RAIL
1” FILTER
FRAME
2” FILTER
FRAME
4
G
R
S
NO
YES
NO
YES
YES
YES
YES
YES
NO
NO
NO
NO
NO
NO
YES
YES
YES
YES
NO
NO
NO
NO
NO
NO
YES
YES
YES
YES
NO
NO
NO
NO
NO
NO
YES
YES
YES
YES
NO
NO
NO
NO
NO
NO
E = 265/60/1
F = 460/60/3
H = 208/230/60/3
M = DXM2 w/LON
P = DXM2 w/MPC
Copper
Cupro-Nickel
B G
Non-Coated Air Coil
S = Left Return, Stainless Steel Drain Pan
T = Right Return, Stainless Steel Drain Pan
G = 208/230/60/1
B = DXM2
K = DXM2 w/LON
w/DISCONNECT
S = DXM2 w/MPC
{

Related product manuals