EasyManua.ls Logo

CLIVET ELFORoom2 003.0 - 5.7 HID-Txx Electronic Room Thermostat Connection

CLIVET ELFORoom2 003.0
46 pages
Print Icon
To Next Page IconTo Next Page
To Next Page IconTo Next Page
To Previous Page IconTo Previous Page
To Previous Page IconTo Previous Page
Loading...
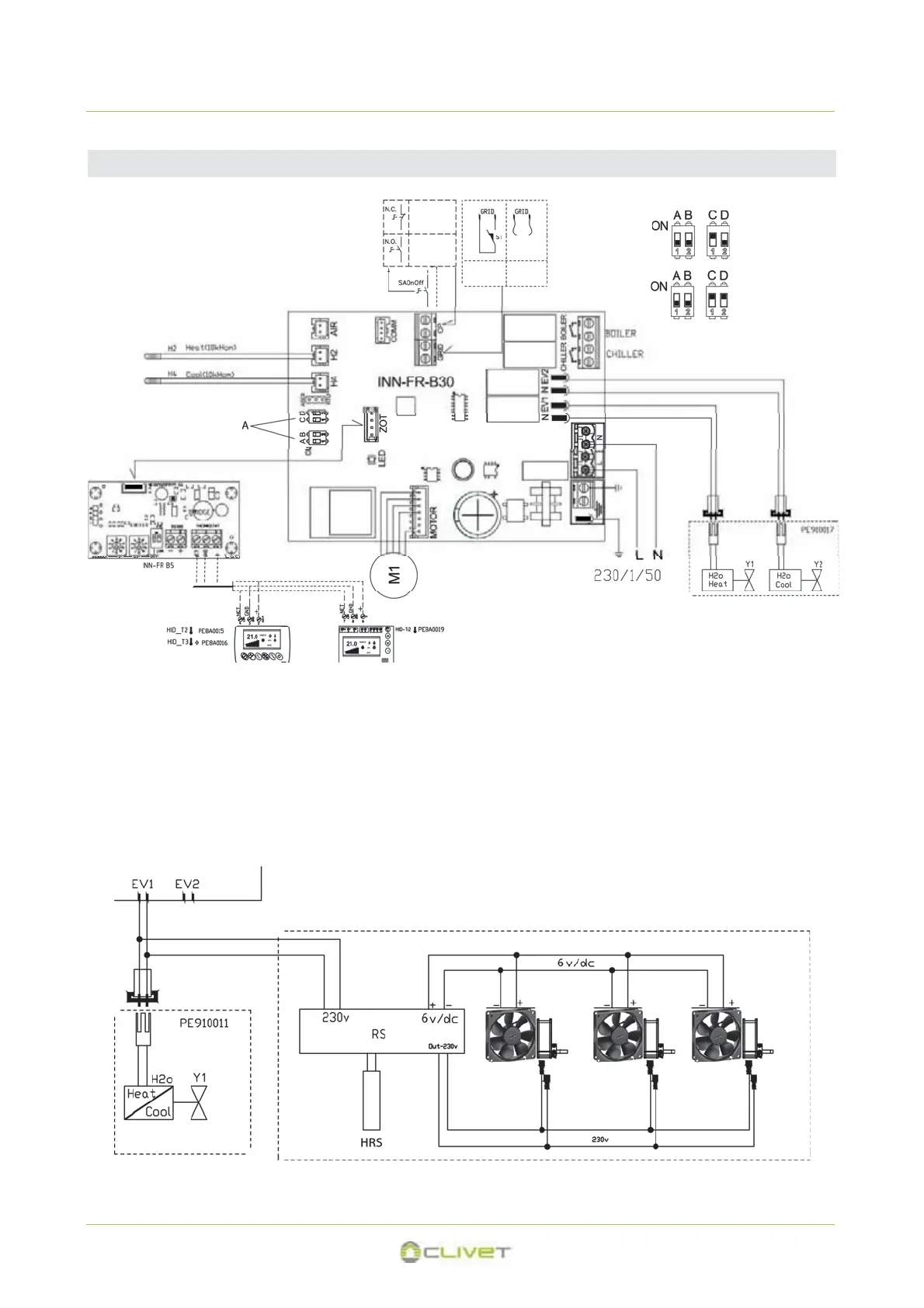
5 - ELECTRICAL CONNECTIONS
5.7 Connection to HID-Txx electronic room thermostat
4 Pipes : Y1 + Y2
2 Pipes : Y1
4 pipes
M1 = motor
Built-in
On the wall
Cased
version
Built-in
version
OFF unit
ON unit
BOILER Heating go-ahead output (boiler-caldaia)
free contact max 1A
CHILLER Cooling go-ahead output (chiller)
free contact max 1A
CP Remote ON / OFF
H2 Water temperature probe (10k)
(4 Pipes ĺ heating)
(2 Pipes ĺ cooling / heating)
H4 Water temperature probe (10)
(4 Pipes ĺ cooling)
S1 Grill safety micro-switch
Y1 Water solenoid valve (4 Pipes ĺ heating)
(2 Pipes ĺ heating / cooling)
Y2 Water solenoid valve (4 Pipes ĺ cooling)
Radiant optional
Only 2 pipes
Gr. 003.0 = n°1
2 pipes
Gr. 015.0 - 017.0 = n°3
Gr. 005.0 - 011.0 = n°2
HRS - Water temperature probe (2k)
Deck
electric
S1
A - dip-switch position
2 pipes version
4 pipes version
M09160D17-02 67

Table of Contents

Other manuals for CLIVET ELFORoom2 003.0

Related product manuals