EasyManua.ls Logo

COBHAM AVIATOR 200S - SCM-5055 SDU Configuration Module

COBHAM AVIATOR 200S
101 pages
Print Icon
To Next Page IconTo Next Page
To Next Page IconTo Next Page
To Previous Page IconTo Previous Page
To Previous Page IconTo Previous Page
Loading...
SCM-5055 SDU Configuration Module
98-145168-A Chapter 3: Equipment drawings 3-3
3333
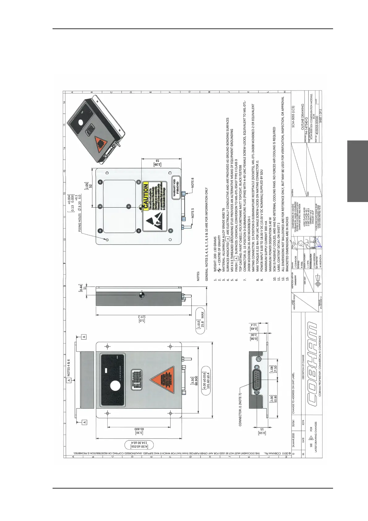
3.2 SCM-5055 SDU Configuration Module
Figure 3-2: Outline drawing SCM-5055 (1/2)

Table of Contents