EasyManua.ls Logo

ComAp IS-NT-BB - Page 129

ComAp IS-NT-BB
149 pages
Print Icon
To Next Page IconTo Next Page
To Next Page IconTo Next Page
To Previous Page IconTo Previous Page
To Previous Page IconTo Previous Page
Loading...
IGS-NT Installation Guide
129
Leroy Somer: R 129
AVRi+
AVRi-
18VAC
From
generator
OUT 1
OCOM
iG-
AVRi
iG
-
AVRi
TRANS
230/400VAC
0VAC
AVRI COM
AVRI OUT
J2
AVRi output is connected instead Remote voltage trimmer 470 ohm
to terminal J2. Module R726 is not required.
AVRi trim to minimum
counter clockwise.
Volt/PF ctrl:
AVR DCout bias = 50%
VoltRegChar = POSITIVE
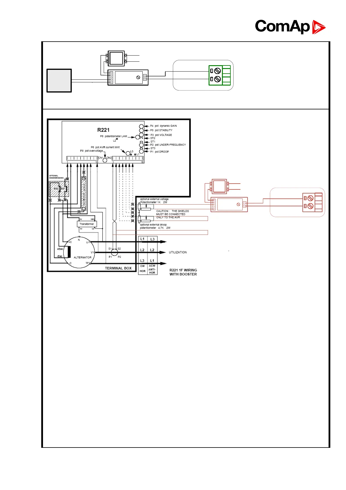
Leroy Somer: R 221, R 222
AVRi+
AVRi-
18 VAC
from generator
iG-
AVRi
iG
-
AVRi
TRANS
230/ 400VAC
0 VAC
AVRI COM
AVRI OUT
OUT1
OUT2
Module R726 is not required.
AVRi trim to minimum counter clockwise +5%.
Volt/PF ctrl:
AVR DCout bias = 24%
VoltRegChar = POSITIVE

Table of Contents

Other manuals for ComAp IS-NT-BB

Related product manuals