EasyManua.ls Logo

ComAp IS-NT-BB - Intelimains - BTB Application; Basebox Controller

ComAp IS-NT-BB
149 pages
Print Icon
To Next Page IconTo Next Page
To Next Page IconTo Next Page
To Previous Page IconTo Previous Page
To Previous Page IconTo Previous Page
Loading...
IGS-NT Installation Guide
83
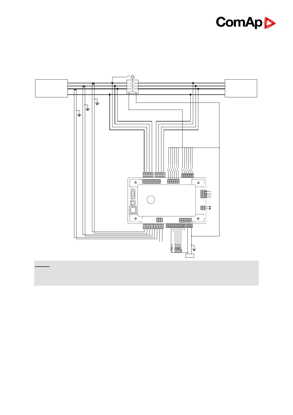
9.7. InteliMains BTB Application
9.7.1. BaseBox controller
BusL V meas
BI
1
BO
A1
AI COM
A2
A3
BusR V meas
2 3 4 5 6
7 8 9 10 11 12
9 10 11 12 + -
1 2 3 4 5 6 7 8 + -
L1k L1l
L2k L2l L3k L3l LNkLNl
AOUT+
AOUT COM
BTB FEEDBACK
BTB DISABLE
ISSUEACTCALLC1
ACCESSLOCK INT
REMOTE OFF
FORCE SYNC
WARNING 8
WARNING 9
WARNING 10
BREAKER OPEN 11
FORCEVALUEIN1
K
L
k
l
K
L
k
l
K
L
k
l
HORN
ALARM
BUSR PARAMS OK
BUSL PARAMS OK
BTB CLOSE/OPEN
+
-
Monitoring
Analog
control
BTB
L1
L2
L3
N
GEN-SET GROUP
Y
GEN-SET GROUP
X
L1
L2
L3
N
PULSECOUNTER 1
Aux Curr
Meas
NOTE:
Binary Input BTB FEEDBACK and Binary Output BTB OPEN/CLOSE are the only compulsory BI
and BO in this application. Other Binary Inputs and Outputs in the schematics are only
recommended or suggested for basic and advanced functions of the controller.

Table of Contents

Other manuals for ComAp IS-NT-BB

Related product manuals