EasyManua.ls Logo

ComAp IS-NT-BB - Controller with Built-In Display

ComAp IS-NT-BB
149 pages
Print Icon
To Next Page IconTo Next Page
To Next Page IconTo Next Page
To Previous Page IconTo Previous Page
To Previous Page IconTo Previous Page
Loading...
IGS-NT Installation Guide
80
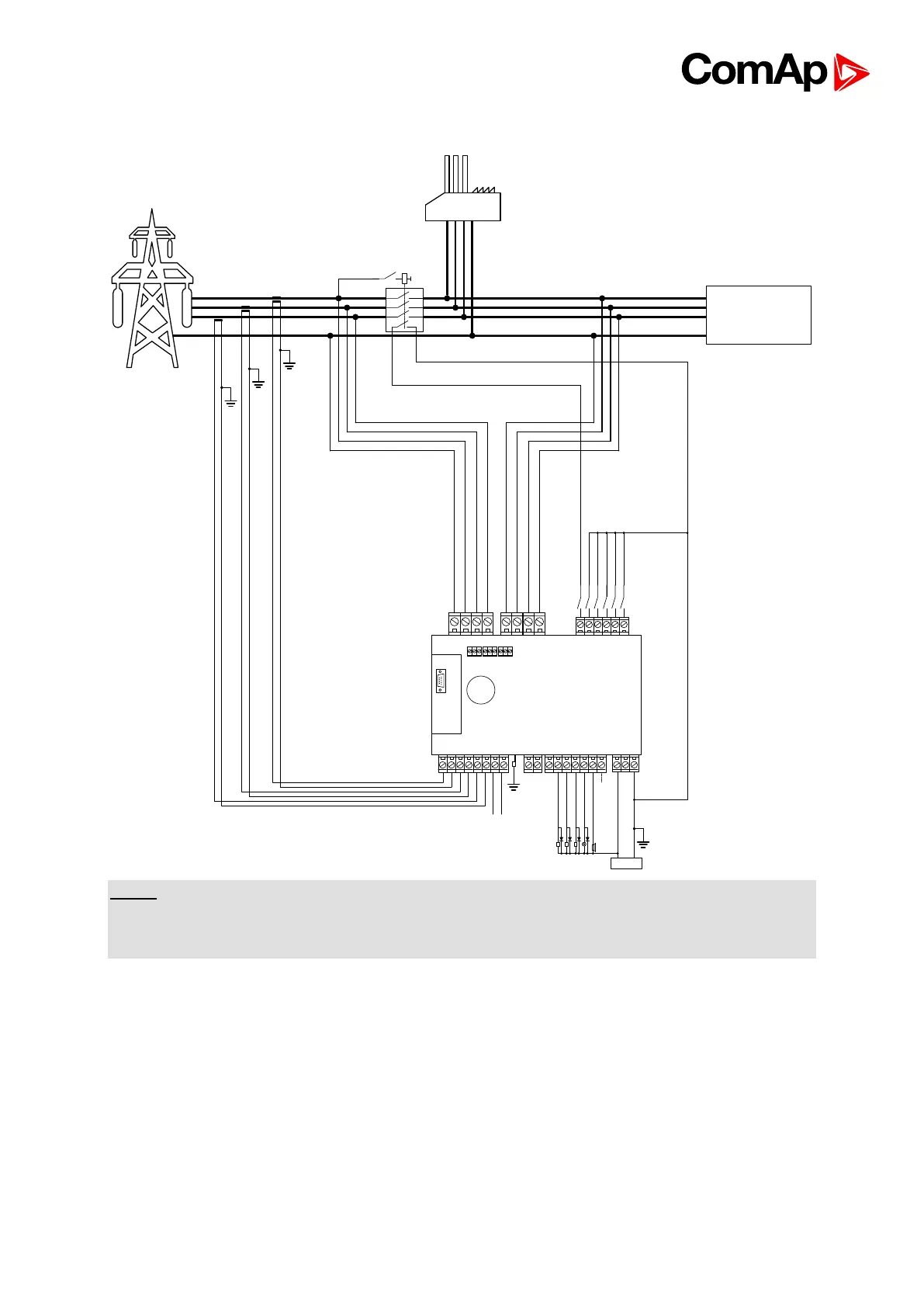
9.5.2. Controller with built-in display
Binary inputs
Binary outputs
+PWR BOUT
Grounding
Mains V meas Bus V meas
L1k L1l L2k L2l
L3k L3l
LNk
LNl
1 2
3
4 5 6
+ -
1 2
3
4 5 6
Load
MCB FEEDBACK
TEST ON LOAD
REMOTE START/STOP
REMOTE TEST
ACCESSLOCK INT
REMOTE OFF
K
L
k
l
K
L
k
l
K
L
k
l
HORN
ALARM
BUS PARAMS OK
MAINS PARAMS OK
MCB CLOSE/OPEN
+
-
MCB
L1
L2
L3
N
GEN-SET GROUP
L1
L2
L3
N
Aux Curr
Meas
NOTE:
Binary Input MCB FEEDBACK and Binary Output MCB OPEN/CLOSE are the only compulsory BI
and BO in this application. Other Binary Inputs and Outputs in the schematics are only
recommended or suggested for basic and advanced functions of the controller.

Table of Contents

Other manuals for ComAp IS-NT-BB

Related product manuals