EasyManua.ls Logo

COMBAT CUHA - Fig 5.3 Wiring for CUHB & CUHC models 180 to 300

COMBAT CUHA
84 pages
Print Icon
To Next Page IconTo Next Page
To Next Page IconTo Next Page
To Previous Page IconTo Previous Page
To Previous Page IconTo Previous Page
Loading...
Page 38
UNIT HEATER
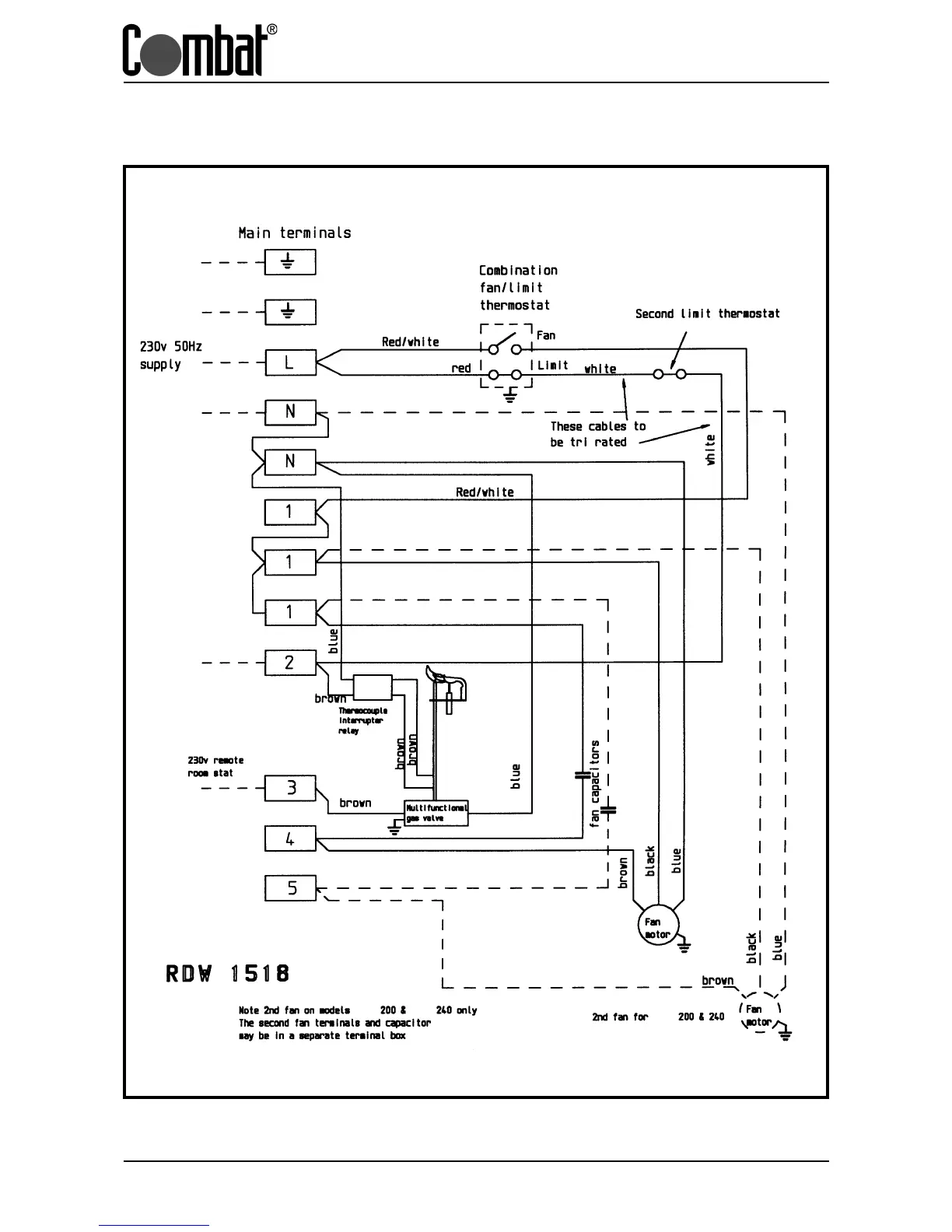
Fig. 5.1 Wiring for CUHA Manual Ignition Range
Section 5. WIRING DIAGRAMS
MANUAL IGNITION

Table of Contents

Related product manuals