EasyManua.ls Logo

CommScope FL1000 - Page 26

CommScope FL1000
34 pages
Print Icon
To Next Page IconTo Next Page
To Next Page IconTo Next Page
To Previous Page IconTo Previous Page
To Previous Page IconTo Previous Page
Loading...
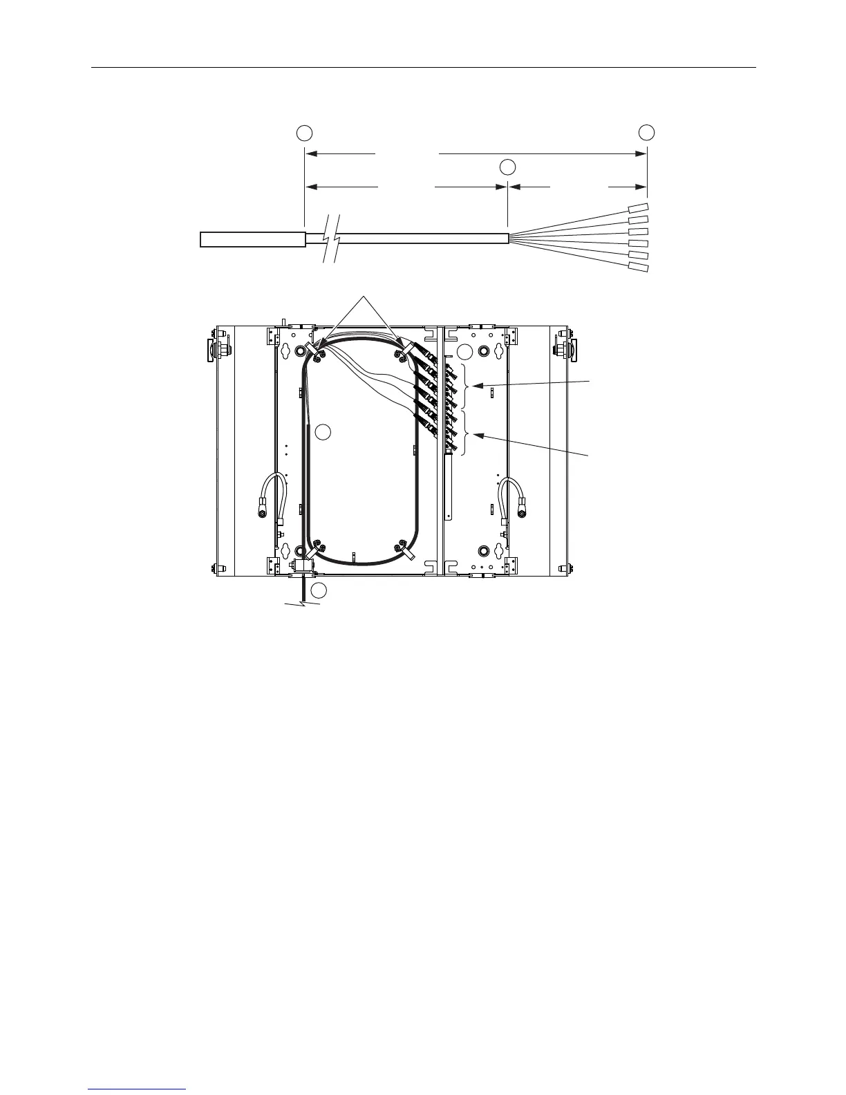
IFC OR OSP
CABLE
A
B
C
SHEATH
81.0 IN.
(205.7 CM)
100.0 IN.
(254.0 CM)
19.0 IN.
(48.3 CM)
SUB-UNITS
FIBERS
CONNECTORS
24575-A
TOP 6 PAKS
(ROUTED FROM BOTTOM)
A
B
C
ROUTE TOP
THREE FIBERS
AROUND BOTH
RADIUS LIMITERS
ROUTE BOTTOM
THREE FIBERS
AROUND LEFT
RADIUS LIMITER
ONLY
RADIUS
LIMITERS
ADCP-90-545 • Issue 4 • July 2016
Page 26
© 2016 CommScope. All Rights Reserved.
Figure 23. Field Termination Breakout and Routing, 24-Fiber Wall-Mount Box (Bottom Entry, Top 6paks)

Related product manuals