EasyManua.ls Logo

Convotherm OGS 6.10 - Page 102

Default Icon
Print Icon
To Next Page IconTo Next Page
To Next Page IconTo Next Page
To Previous Page IconTo Previous Page
To Previous Page IconTo Previous Page
Loading...
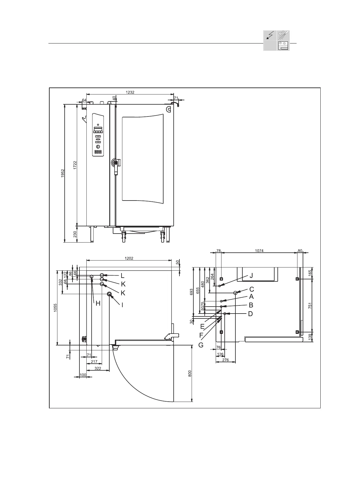
Maßzeichnungen und Anschlusspläne
Dimensional drawings and Connection plans
Schémas de mesures et diagrammes de raccordement
98
OES / OEB 20.20
A = Wasseranschluss Weichwasser G¾
Water connection soft water G¾
Raccordement eau douce G¾"
B = Wasseranschluss Kaltwasser
Water connection cold water G¾“
Raccordement eau froide G¾"
C = Abwasseranschluss DN50
Drain connection DN50
Raccordement pour l'écoulement de l'eau DN50
D = Elektroanschluss
Electric connection
Branchement électrique
E = Potentialausgleich
Equipotential
Stabilisation du potentiel
F = Klarspüleranschluss
Clear rinse connection
Raccordement au dispositif de rinçage
G = Reinigeranschluss
Cleaner connection
Raccordement au dispositif de nettoyage
H = Entlüftungsrohr
Ventilation pipe
Tuyau d'aération
I = Unterdrucksicherung
Low pressure safety device
Sécurité contre la dépressurisation

Other manuals for Convotherm OGS 6.10

Related product manuals