EasyManua.ls Logo

Convotherm OGS 6.10 - Page 104

Default Icon
Print Icon
To Next Page IconTo Next Page
To Next Page IconTo Next Page
To Previous Page IconTo Previous Page
To Previous Page IconTo Previous Page
Loading...
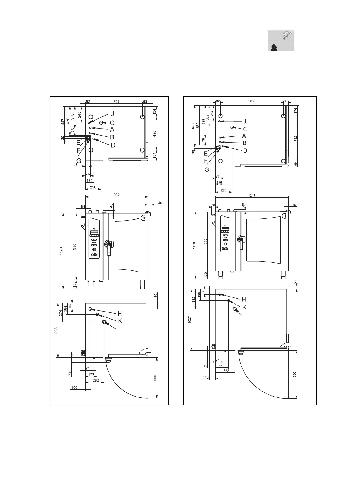
Maßzeichnungen und Anschlusspläne
Dimensional drawings and Connection plans
Schémas de mesures et diagrammes de raccordement
100
OGS 10.10 OGS 10.20
A = Wasseranschluss Weichwasser G¾“ / Water connection soft water G¾“ / Raccordement eau douce G¾"
B = Wasseranschluss Kaltwasser “ / Water connection cold water G¾“ / Raccordement eau froide G¾"
C = Abwasseranschluss DN50 / Drain connection DN50 / Raccordement pour l'écoulement de l'eau DN50
D = Elektroanschluss / Electric connection / Branchement électrique
E = Potentialausgleich / Equipotential / Stabilisation du potentiel
F = Klarspüleranschluss / Clear rinse connection / Raccordement au dispositif de rinçage
G = Reinigeranschluss / Cleaner connection / Raccordement au dispositif de nettoyage
H = Entlüftungsrohr / Ventilation pipe / Tuyau d'aération
I = Unterdrucksicherung / Low pressure safety device / Sécurité contre la dépressurisation

Other manuals for Convotherm OGS 6.10

Related product manuals