EasyManua.ls Logo

Coolerado M50C - Appendix 2: Control Board and Wiring Diagrams

Default Icon
63 pages
Print Icon
To Next Page IconTo Next Page
To Next Page IconTo Next Page
To Previous Page IconTo Previous Page
To Previous Page IconTo Previous Page
Loading...
Coolerado Installation
Page 26 of 63
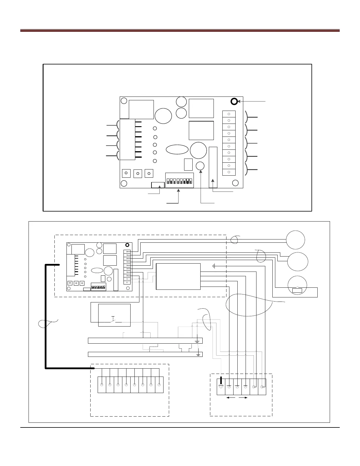
Appendix 2: Control Board and Wiring Diagrams
Water
, Elevation and Fan
Control Dip Switches
Auto Variable Fan
Control, 0 to 10 VDC
RC provides 24 VAC for dry
contact to Y with Cool Call
Operates
Water Solenoid
0 to 10 VDC to Fan
speed control
Surfactant Pump
control
24 VAC power supply
from transformer
Fan Speed Potentiometer,
turn clockwise for full speed.
Grounded
support hole
2A 250V Slow Blow Fuse
Water Control
Board
Y
24V
AIN
C
WS
24V
FR
C
C
SP
C
WV
24V
PS
C
AO
C
R
WINTER
FLUSH
COOL
WATER
POWER
WINTER
WETOUT
PRIME
1 2 3 4 5 6 7 8
HMXC14
W
R
Y
C
G
Pressure
Switch
Winter/Summer Control
Freeze Protection
24 VAC Out
Temperature and Humidity Sensor
Solenoid
Valve
Soap
Pump
NO
Low
Water
Pressure
Com
Variable Fan
1-10 VDC
Y-24 VAC IN
RC- 24 VAC
OUT
277 VAC
240 VAC
208 VAC
NEUTRAL
PE / GND
Com, Blk
208 VAC, Red
240 VAC, Org
Optional, 277 VAC, Brn
Com
24 VAC
Transformer
Ziehl Abegg Fan: +24V +10V GND D1 E1 11 14 L1 L2 N
Move Spade Connector To
Correct Voltage, Then Connect
Power (Spade Provides Fan
Power)
18/8 Wire, 300 V
18/4 Wire, 300V
18/2 Wire, 300 V
18/3 Wire, 600 V
18/5 Wire, 600 V
Upper Electrical Box
Jumper Wire
EBM Fan: +20 +10 0-10V GND Out L N
M50C
Enclosure
BLK
BLK
ORG
RED
W
GRN
W
GRN
W
RED
ORG
BLK
BLK
W
GRN
R
W
W
BK
G
BLK
M50B REV D
10-15-2015
L
Y
24V
AIN
C
WS
24V
FR
C
C
SP
C
WV
24V
PS
C
AO
R
WINTER
FLUSH
COOL
WATER
POWER
WINTER
WETOUT
PRIME
1 2 3 4 5 6 7 8
HMXC14
W
R
Y
C
G
C
Yel
Red
Br
Bk
Bl
Wh
Org
Grn
Winter /
Summer
24 VAC
Freeze Protect
24 VAC
Com
Y R Br Bk Bl W Or G
BLK
Fuse
GRN
Door Magnet Fan
On/Off Switch,
Bk
Bk
Dipswitch Settings, (DS)
DS 1, Power Failure causes wet out
OFF = 1 hour
ON = 4 hours
DS 2 Water Rate
OFF = 25% extra
ON = 50% extra
DS 3 & 4 Model Number
OFF-OFF M50B
ON-OFF C60A
OFF-ON M30
ON-ON open
DS 5 & 6 Elevation
OFF-OFF 0
ON-OFF 2000'
OFF-ON 4000'
ON-ON 6000'
DS 7 Auto Variable Fan
OFF 10 vdc
ON 0 – 10 vdc input
DS 8 Freeze Protection
OFF or ON

Table of Contents

Related product manuals