EasyManua.ls Logo

COVANA Evolution Series - Page 44

COVANA Evolution Series
56 pages
Print Icon
To Next Page IconTo Next Page
To Next Page IconTo Next Page
To Previous Page IconTo Previous Page
To Previous Page IconTo Previous Page
Loading...
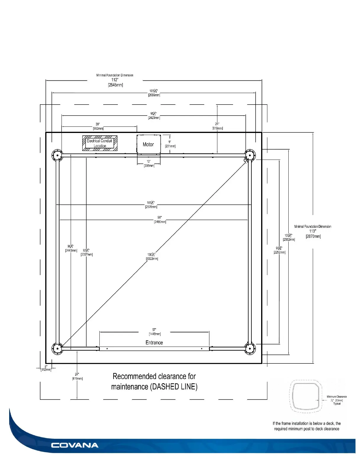
44 TECHNICAL SPECIFICATIONS INSTALLATION MANUAL
Figure 85
**NOT TO SCALE**
Long side (LS) model (8 feet only)

Related product manuals