EasyManua.ls Logo

COVANA Evolution Series - Frame Dimensions and Footprint Requirements

COVANA Evolution Series
56 pages
Print Icon
To Next Page IconTo Next Page
To Next Page IconTo Next Page
To Previous Page IconTo Previous Page
To Previous Page IconTo Previous Page
Loading...
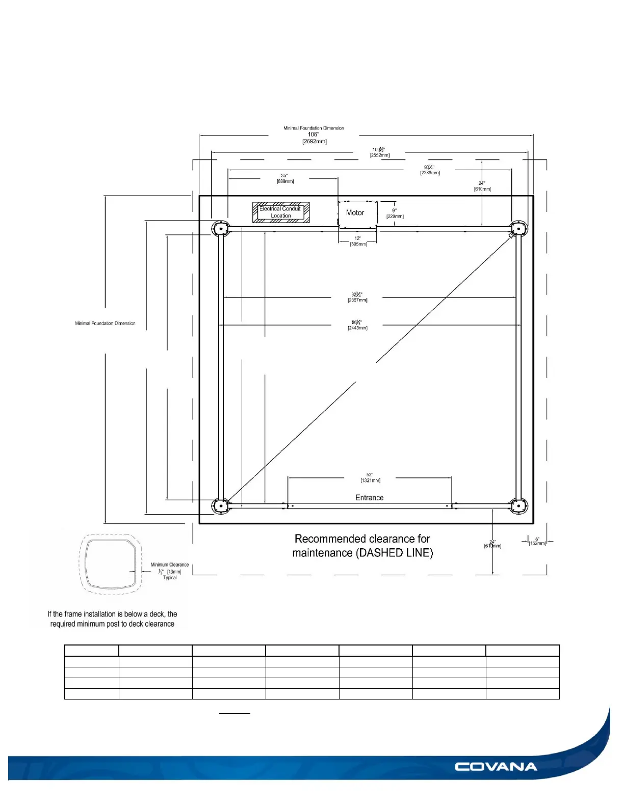
INSTALLATION MANUAL TECHNICAL SPECIFICATIONS 43
Table 1: Dimensions in accordance to cover length
Frame dimensions and foot print
Cover length
(A)
(B)
(C)
(D)
(E)
(F)
8’
118’’ (2997 mm)
105¾’’ (2685 mm)
95¼'' (2422 mm)
101½'' (2576 mm)
98'' (2490 mm)
131¼'' (3334 mm)
9’
130½’’ (3315 mm)
118¼’’ (3004 mm)
107½’’ (2731 mm)
114’’ (2896 mm)
110½’’ (2807 mm)
140½'' (3569 mm)
10’
142½’’ (3620 mm)
130¼’’ (3308 mm)
119½’’ (3035 mm)
126’’ (3200 mm)
122½’’ (3112 mm)
150'' (3810 mm)
11’
154½’’ (3924 mm)
142¼’’ (3613 mm)
131½’’ (3340 mm)
138’’ (3505 mm)
134½’’ (3416 mm)
159¾'' (4058 mm)
Figure 98
**NOT TO SCALE**
Figure 84
Standard model
(A)
(B)
(C)
(D)
(E)
(F)

Related product manuals