EasyManua.ls Logo

CPS SCH100KTL-DO-600 - Page 40

CPS SCH100KTL-DO-600
111 pages
Print Icon
To Next Page IconTo Next Page
To Next Page IconTo Next Page
To Previous Page IconTo Previous Page
To Previous Page IconTo Previous Page
Loading...
36
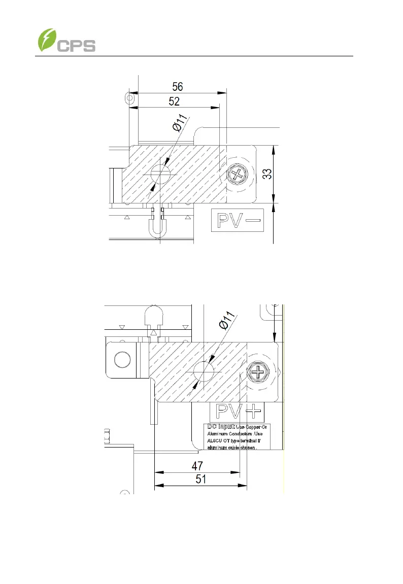
Centralized Wire-box Ver #2
DC BUS CONNECTION DIMENSIONS (PV-)
Centralized Wire-box Ver #2
DC BUS CONNECTION DIMENSIONS (PV-)

Related product manuals