EasyManua.ls Logo

CUMMINS DG set - Remote Radiator

CUMMINS DG set
30 pages
Print Icon
To Next Page IconTo Next Page
To Next Page IconTo Next Page
To Previous Page IconTo Previous Page
To Previous Page IconTo Previous Page
Loading...
13
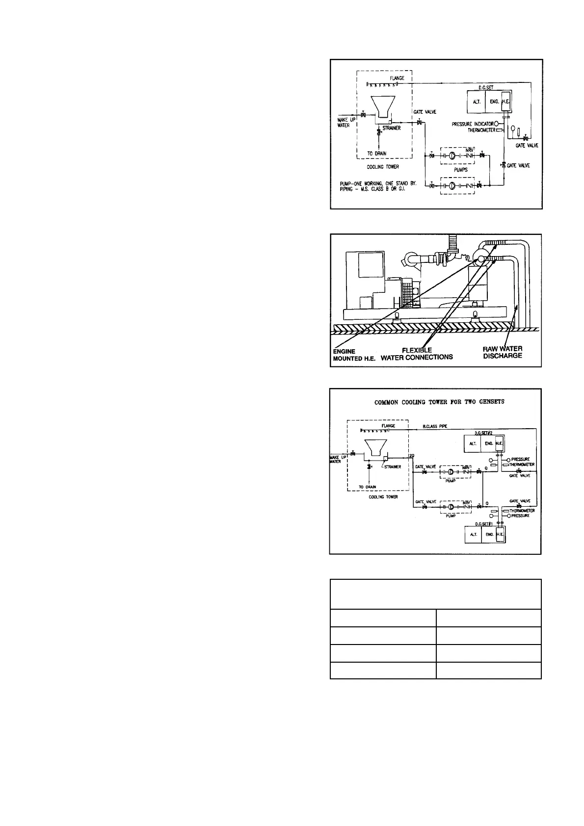
J.3 Raw water inlet temperature should be 32
O
C with typical
temperature rise of 7-11
O
C. Cooling tower should be
selected based on this temperature difference and wet
bulb temperature of site. Typical recommendations are
given in Table-1.
J.4 It is mandatory to install raw water temperature and
pressure gauges at inlet and out let connections to H.E.
J.5 Recommended raw water pressure at inlet of heat
exchanger should be 3.5 kg/cm
2
(50 psi) max. There
should be positive pressure on suction of raw water
pump.
J.6 Strainer, non-return valve should be used in cooling tower
circuit as shown. It is mandatory to use pressure and
temperature gauge in both supply and return lines.
J.7 Please refer Table 1 for typical raw water pipe sizes,
cooling tower capacities, raw water flows etc.
J.8 Raw water piping should be connected to engine HE by
flexible connection / hose in order to isolate engine
vibrations and to avoid undue stress on H.E. and piping.
J.9 For multiple sets, piping should be designed to handle
the required flow rate. In some cases, balancing valves
may be required to branch flow.
J.10 For sea water application in raw water circuit, special
cooling system is required. Please contact OEM/
Cummins.
J.11 Raw water pump sizing is to be done on friction, static
head (location of cooling tower) and piping layout. Table
J.11 provides typical raw water pump sizes as guidelines
only. However proper selection of pump model is
based on friction and static head (location of cooling
tower) and piping layout, at a particular installation.
J.12 Typically MS pipes should be used for raw water. If GI
pipes are used, those must be threaded at flanges. The
welding will destroy galvanising properties.
J.13 Radiator fan flow should be free from any obstruction.
J.14 Remote Radiator
Location of remote radiator
The proper location of remote radiator is very essential
for the successful and efficient operation of remote
radiator. In this the cooling media is ambient air. So in
order to obtain maximum efficiency from remote radiator
it is necessary to get fresh air in its surrounding. The
air to be sucked in should not have any external hot
J.9
Ref. J.8
Ref. J.11
Typical Raw Water Pump Size (Diesel engine)
(20 m total head on pump)
1875 to 2000 KVA 7.5 kW (10 HP)
750 to 1500 KVA 5.5 kW (7.5 HP)
400 to 625 KVA 3.7 kW (5 HP)
Upto 380 KVA 2.2 kW (3 HP)
Ref. J.5

Related product manuals