EasyManua.ls Logo

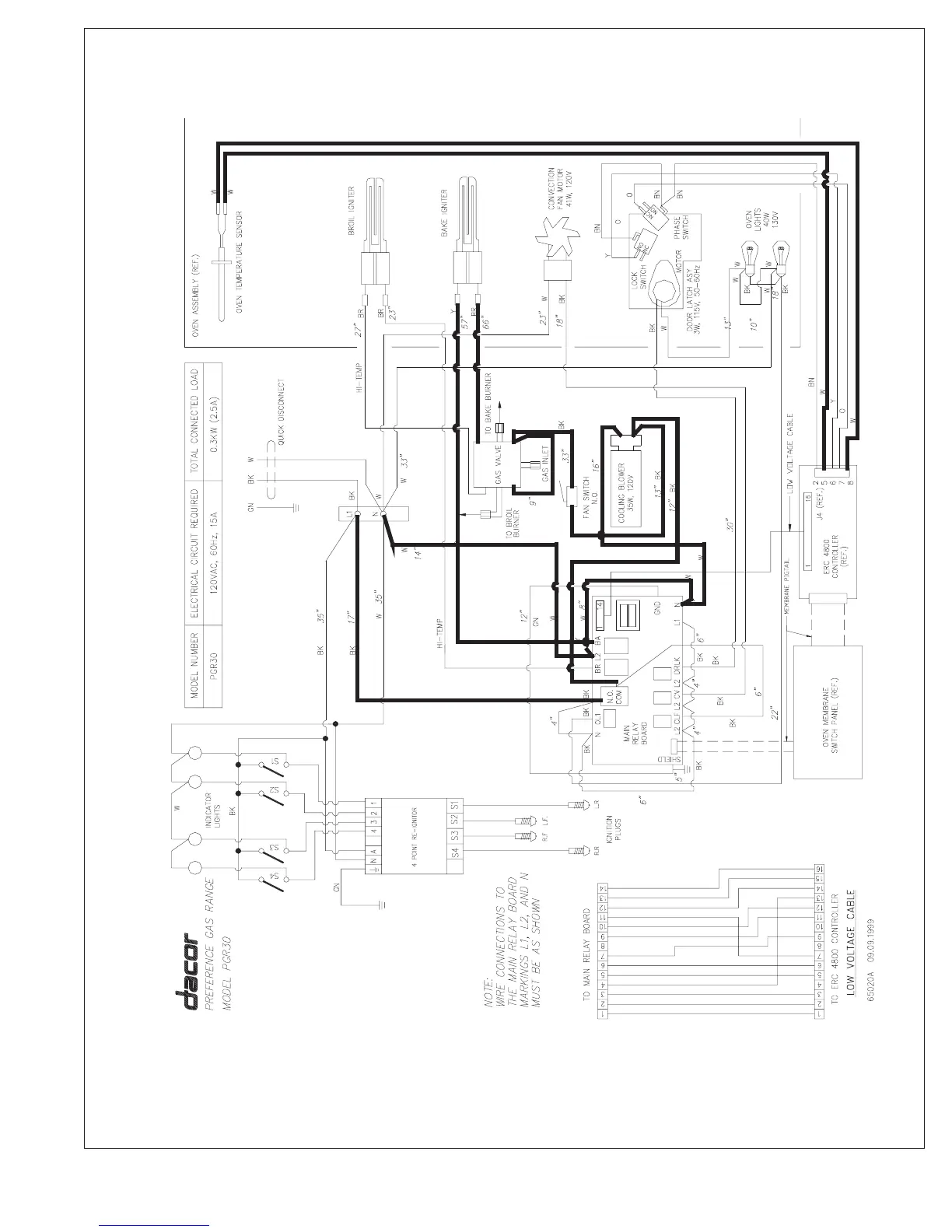
Dacor ECPD - PGR Self-Clean Circuit

Dacor ECPD
159 pages
Print Icon
To Next Page IconTo Next Page
To Next Page IconTo Next Page
To Previous Page IconTo Previous Page
To Previous Page IconTo Previous Page
Loading...
Technical Manual - Page 102
PGR SELF-CLEAN CIRCUIT

Table of Contents

Related product manuals