EasyManua.ls Logo

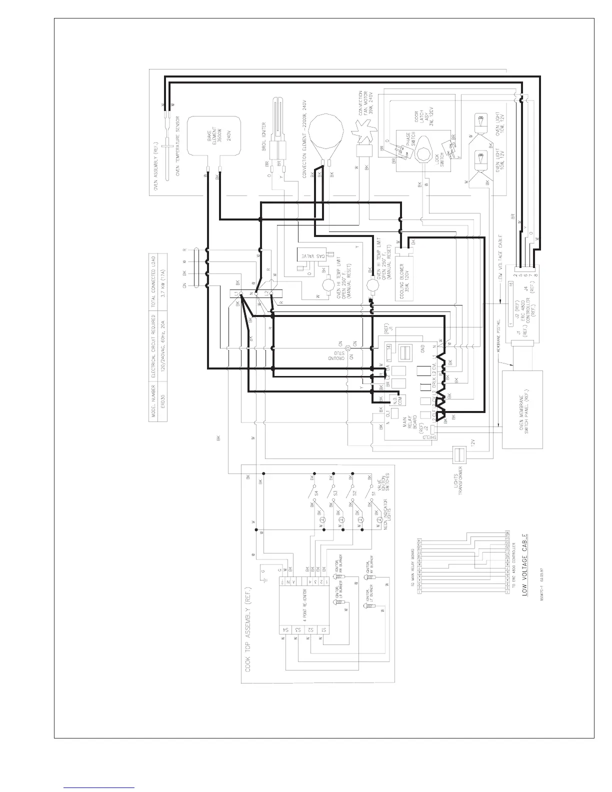
Dacor ECPD - Bake Cycle Diagram

Dacor ECPD
159 pages
Print Icon
To Next Page IconTo Next Page
To Next Page IconTo Next Page
To Previous Page IconTo Previous Page
To Previous Page IconTo Previous Page
Loading...
Technical Manual - Page 58
ERD30 BAKE CYCLE

Table of Contents

Related product manuals