EasyManua.ls Logo

Dacor ECPD - Cooling Fan 180-225 Degrees

Dacor ECPD
159 pages
Print Icon
To Next Page IconTo Next Page
To Next Page IconTo Next Page
To Previous Page IconTo Previous Page
To Previous Page IconTo Previous Page
Loading...
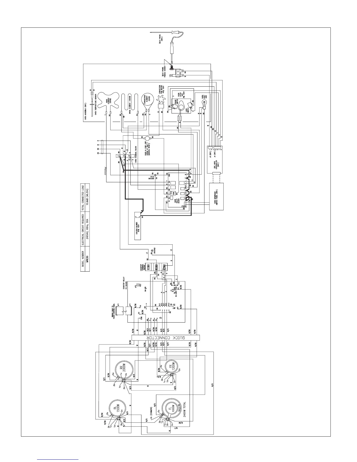
MRE30 Service Instructions Page 24
Cooling Fan
180-225 Degrees
COOLING FAN 180-225 DEGREES

Table of Contents

Related product manuals