EasyManua.ls Logo

Dacor ECPD - PGR Broil Circuit

Dacor ECPD
159 pages
Print Icon
To Next Page IconTo Next Page
To Next Page IconTo Next Page
To Previous Page IconTo Previous Page
To Previous Page IconTo Previous Page
Loading...
Technical Manual - Page 103
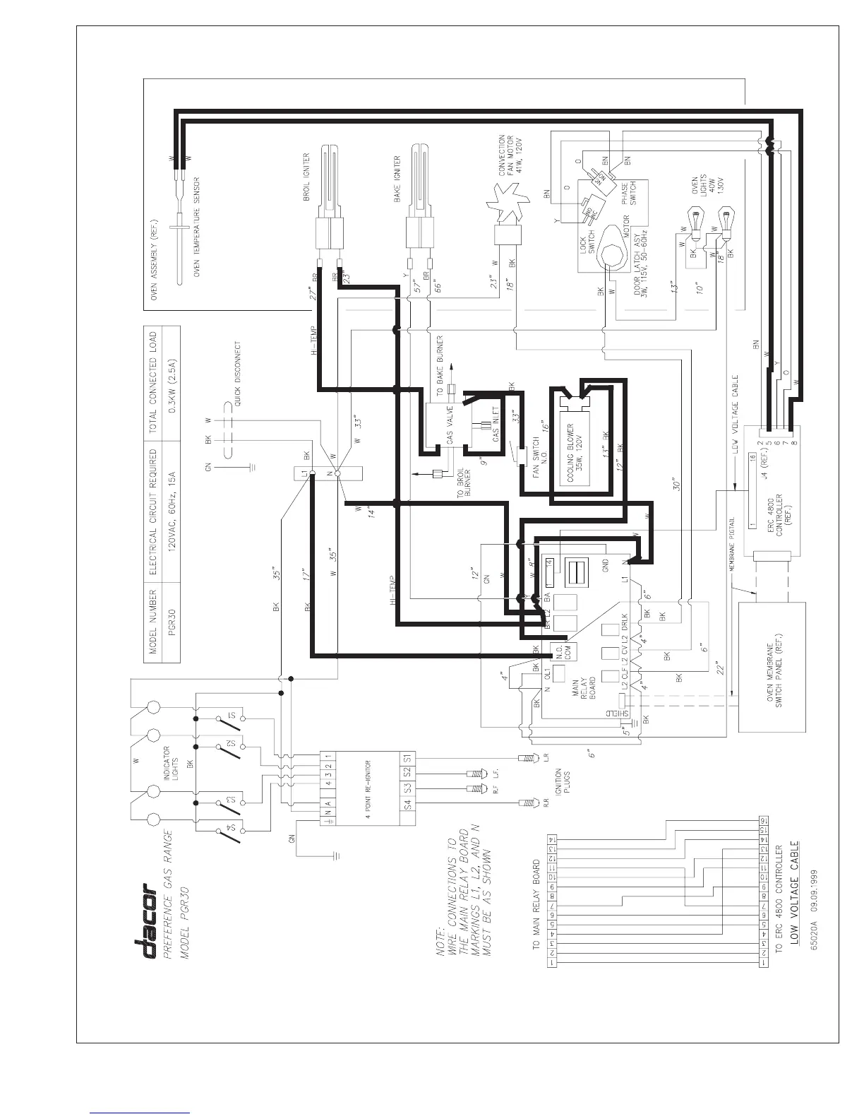
PGR BROIL CIRCUIT

Table of Contents

Related product manuals