EasyManua.ls Logo

Dacor ECPD - 18 Oven - Bake Cycle Diagram

Dacor ECPD
159 pages
Print Icon
To Next Page IconTo Next Page
To Next Page IconTo Next Page
To Previous Page IconTo Previous Page
To Previous Page IconTo Previous Page
Loading...
Technical Manual - Page 71
Note:
Cooling fan turns on between
180 and 220 degrees
.
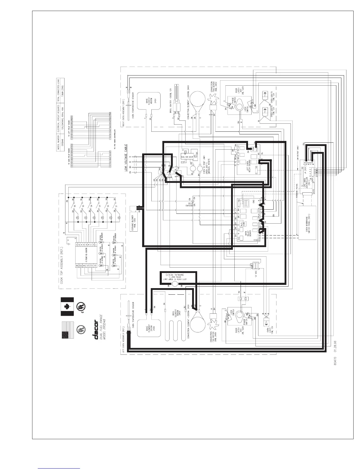
18” OVEN - BAKE CYCLE

Table of Contents

Related product manuals