EasyManua.ls Logo

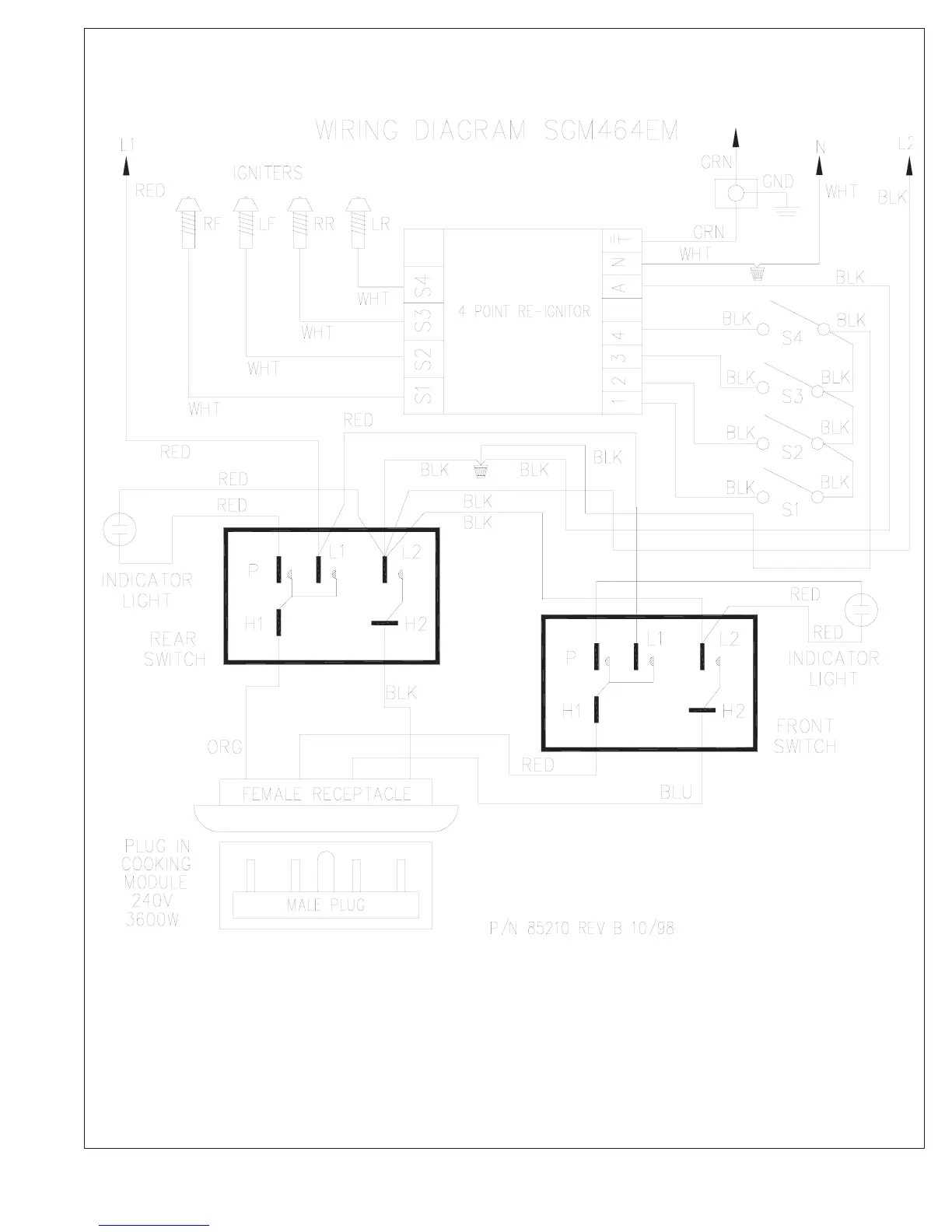
Dacor ECPD - SGM464 EM Diagram

Dacor ECPD
159 pages
Print Icon
To Next Page IconTo Next Page
To Next Page IconTo Next Page
To Previous Page IconTo Previous Page
To Previous Page IconTo Previous Page
Loading...
Technical Manual - Page 50
SGM464EM

Table of Contents

Related product manuals