EasyManua.ls Logo

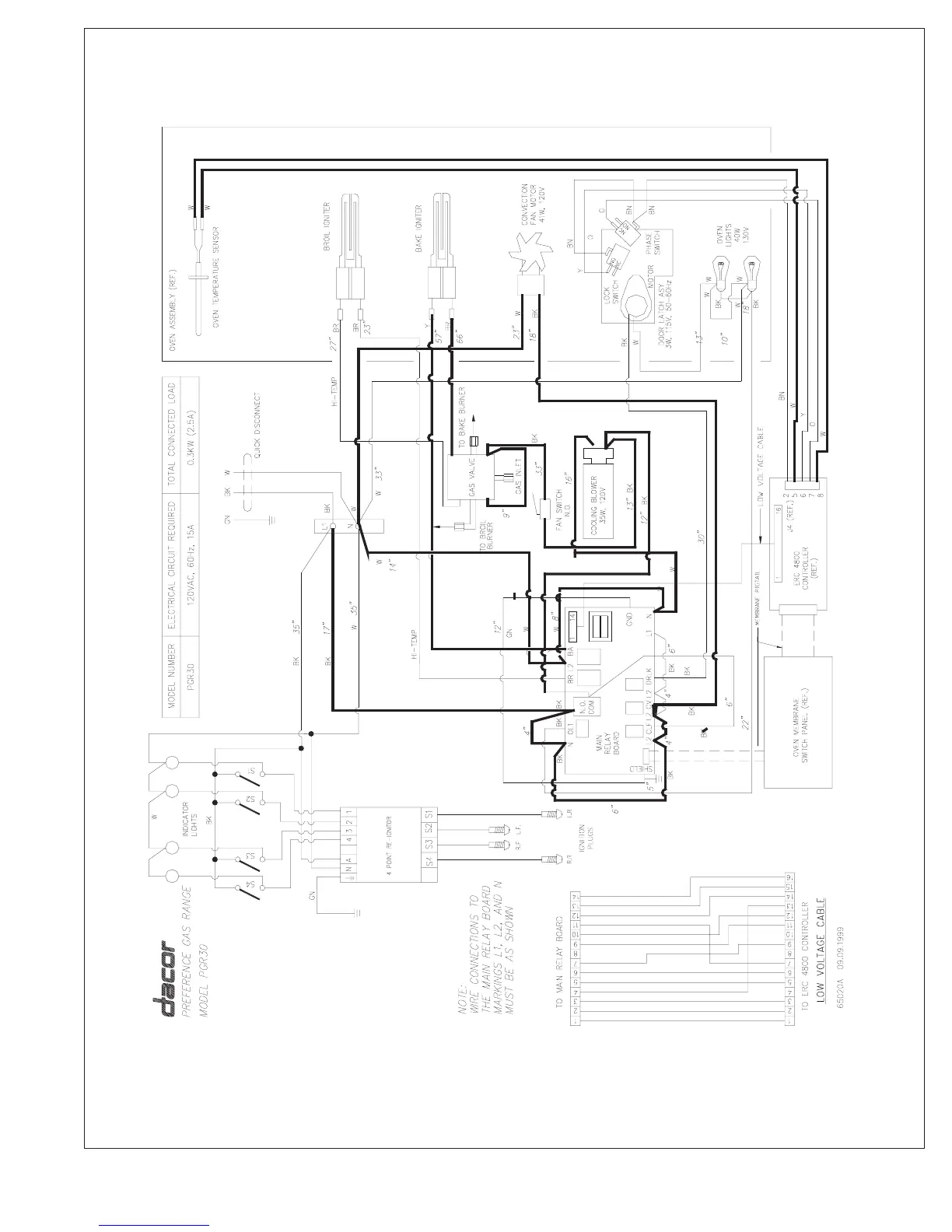
Dacor ERSD - PGR Preheat Circuit

Dacor ERSD
159 pages
Print Icon
To Next Page IconTo Next Page
To Next Page IconTo Next Page
To Previous Page IconTo Previous Page
To Previous Page IconTo Previous Page
Loading...
Technical Manual - Page 101
PGR PREHEAT CIRCUIT

Table of Contents

Related product manuals