EasyManua.ls Logo

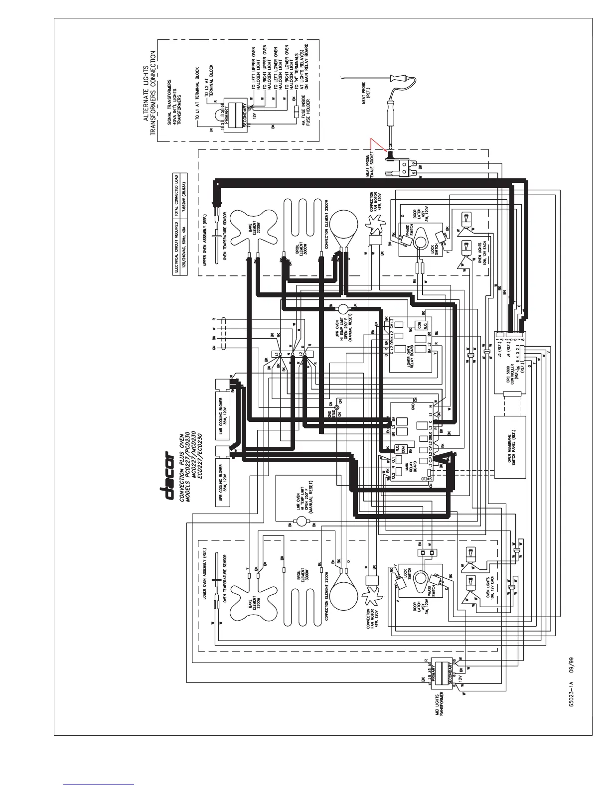
Dacor ERSD - Upper Oven Bake Cycle

Dacor ERSD
159 pages
Print Icon
To Next Page IconTo Next Page
To Next Page IconTo Next Page
To Previous Page IconTo Previous Page
To Previous Page IconTo Previous Page
Loading...
Technical Manual - Page 108
Upper Oven
Bake Cycle

Table of Contents

Related product manuals