EasyManua.ls Logo

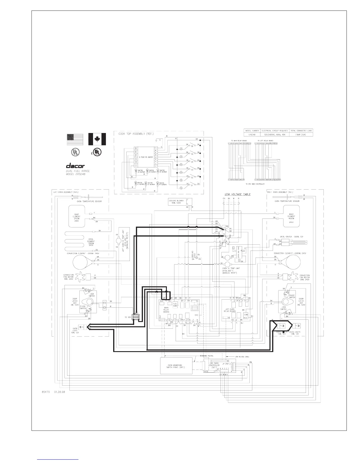
Dacor ERSD - 18 Oven Light Circuit Cycle

Dacor ERSD
159 pages
Print Icon
To Next Page IconTo Next Page
To Next Page IconTo Next Page
To Previous Page IconTo Previous Page
To Previous Page IconTo Previous Page
Loading...
Technical Manual - Page 75
18” OVEN LIGHT CIRCUIT

Table of Contents

Related product manuals