EasyManua.ls Logo

Dacor ERSD - RF Element

Dacor ERSD
159 pages
Print Icon
To Next Page IconTo Next Page
To Next Page IconTo Next Page
To Previous Page IconTo Previous Page
To Previous Page IconTo Previous Page
Loading...
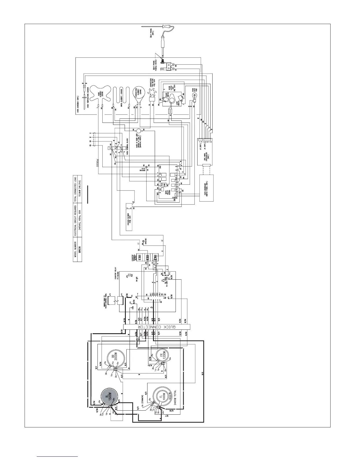
MRE30 Page 38
LR Element Circuit
Stay Hot Circuit - - - - - -
RF ELEMENT

Table of Contents

Related product manuals