EasyManua.ls Logo

Dacor ERSD - Pure Convection Cycle

Dacor ERSD
159 pages
Print Icon
To Next Page IconTo Next Page
To Next Page IconTo Next Page
To Previous Page IconTo Previous Page
To Previous Page IconTo Previous Page
Loading...
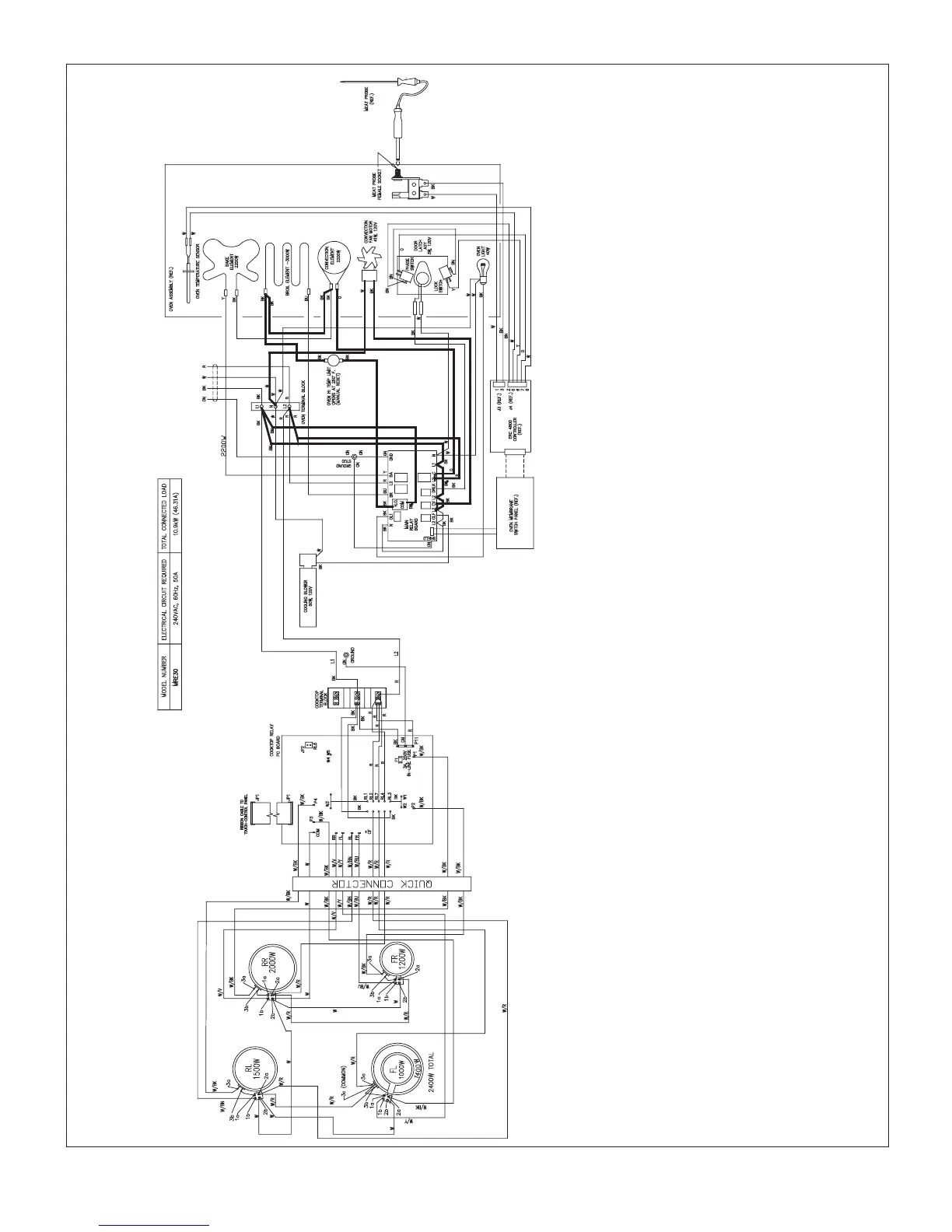
MRE30 Page 21
Pure Convection
PURE CONVECTION CYCLE

Table of Contents

Related product manuals