EasyManua.ls Logo

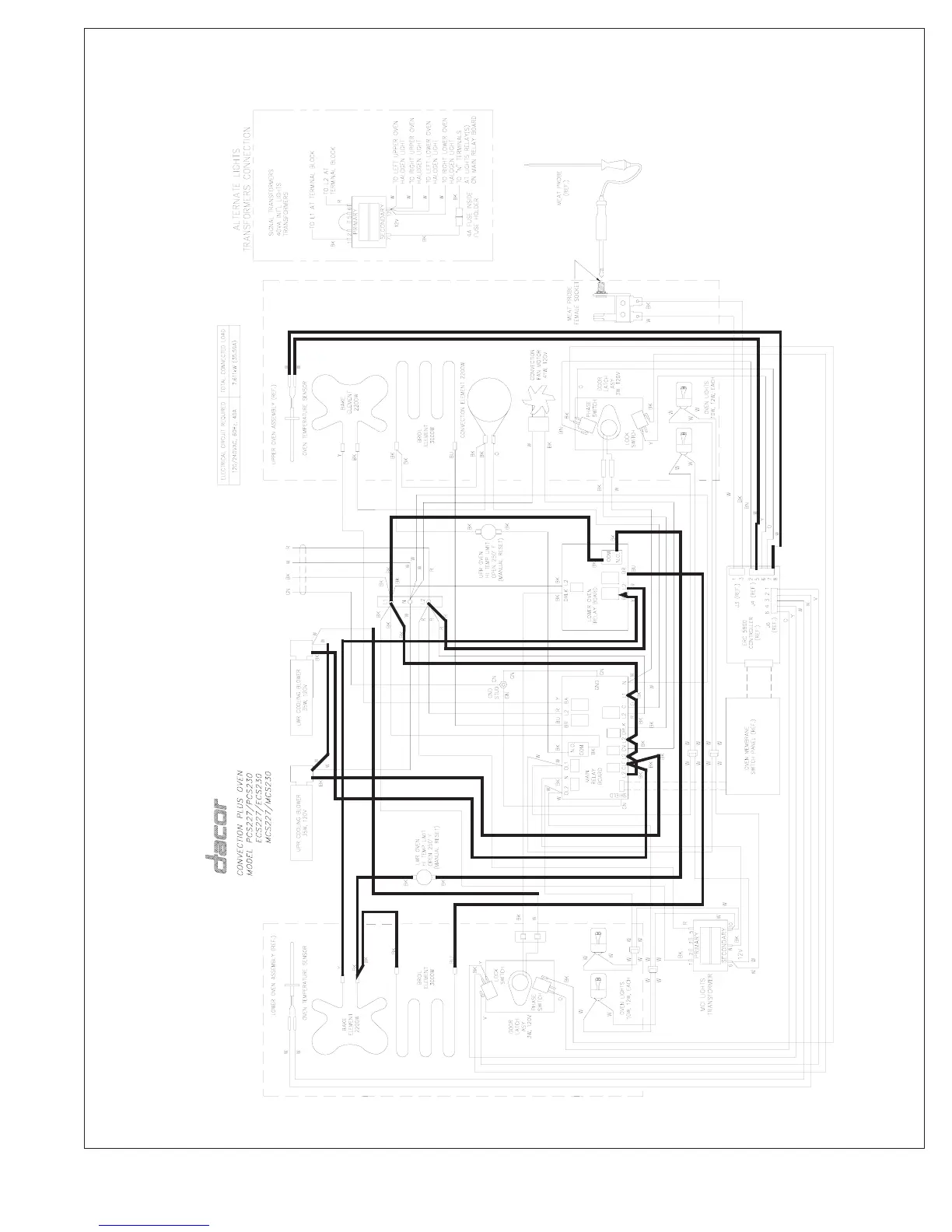
Dacor ERSD - Lower Oven Bake Preheat

Dacor ERSD
159 pages
Print Icon
To Next Page IconTo Next Page
To Next Page IconTo Next Page
To Previous Page IconTo Previous Page
To Previous Page IconTo Previous Page
Loading...
Technical Manual - Page 104
LOWER OVEN BAKE PREHEAT

Table of Contents

Related product manuals